Maison neuve à
La Richardais
(35780) Référence :
LA2491887_6
Prix du projet : Maison avec Terrain
prix 356 400 €
- 5 pièces
- 3 chambres
- Surface maison 90 m2
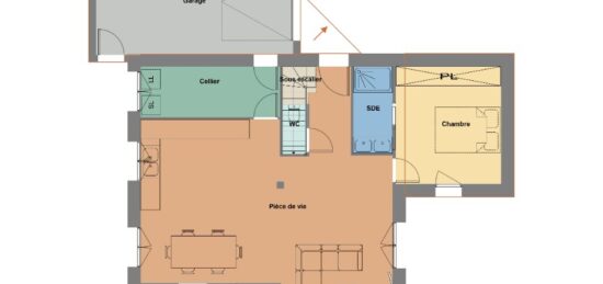
VENTE d'une maison F5 (90 m²) à La Richardais
EMPLACEMENT PRIVILÉGIÉ - Situé dans un environnement rare et recherché, cette maison offre un cadre de vie privilégié, alliant calme absolu, nature et proximité du littoral.
Vous profiterez d'un cadre paisible tout en restant à proximité immédiate des commodités, des plages, du port de la Rance et de Saint-Malo.
MAISON BIOCLIMATIQUE EN OSSATURE BOIS 5 PIÈCES NEUVE
Vous rêvez d'un habitat sain, chaleureux et respectueux de l'environnement ? Découvrez cette magnifique maison contemporaine en ossature bois, alliant design architectural et hautes performances énergétiques.
En vente à 1 km de la Manche et à quelques kilomètres de Saint-Malo, nous vous présentons cette maison de 5 pièces de plain-pied de 90 m², bénéficiant d'un emplacement d'exception dans La Richardais (35780). Son intérieur offre trois chambres, une cuisine et une salle de bains.
Le terrain de la propriété est de 281 m².
Cette maison est neuve.
Cette propriété se trouve dans un quartier convoité. Il y a l'École Élémentaire Publique Louis Bréhault, l'École Maternelle Publique Antoine Launay, l'École Primaire Privée Ste Anne et le Collège Privé Sainte-Marie à moins de 10 minutes à pied et trois crèches. Niveau transports en commun, on trouve deux gares (Saint-Malo et La Gouesnière-Cancale-Saint-Méloir-des-Ondes) à moins de 10 minutes en voiture. On trouve un accès à la nationale N176 à 9 km. Il y a une bibliothèque, un tennis, des commerces, une épicerie, un bureau de poste et une supérette à quelques minutes du logement.
Elle est à vendre pour la somme de 356 400 €.
Prenez contact avec Laetitia AMIRI (02-99-83-07-20) pour toute information sur la maison ou sur les modalités de vente.
Mentions légales
Terrain proposé par un partenaire foncier selon disponibilités et autorisation de publicité au prix de 140 400 €. Hors droit d'enregistrement et frais de notaire. Terrain + Maison proposés au prix de 356 400 € (Hors branchements et raccordements, papiers peints, peintures, revêtement de sol dans les chambres. Tarif modifiable sans préavis). Etiquette énergie : A. Différents modèles disponibles pour ce terrain. Assurances et garanties du constructeur (RC professionnelle, décennale, dommage ouvrage, garantie de remboursement de l'acompte, livraison à prix et délai convenu) : https://www.maisonsdelavenir.com/mentions-legales/.Agence Maisons de l'Avenir de Saint-Carné (22100)
- Téléphone :
- 02 99 83 07 20
- Adressse :
- L'Ecotay
22100 Saint-Carné, France