Maison neuve à
La Sentinelle (59174) Référence : CS2392088_2

Prix du projet : Maison avec Terrain

prix 318 340 €

  • 4 pièces
  • 3 chambres
  • Surface maison 100 m2

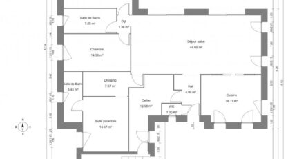
VENTE : maison F4 (100 m²) à La Sentinelle
QUARTIER RECHERCHÉ - MAISON 4 PIÈCES NEUVE
À 18 km de la frontière belge et à quelques kilomètres de Valenciennes, nous sommes heureux de vous proposer à vendre, située dans un secteur convoité de La Sentinelle (59174), cette maison de 4 pièces de plain-pied de 100 m².
Conçue de plain-pied, elle dispose de trois chambres, d'une cuisine et de deux salles de bains. La maison est neuve.
Le terrain de la propriété est de 500 m².
Elle se trouve dans un quartier recherché. Il y a l'École Élémentaire Joliot-Curie et l'École Maternelle Paul Langevin à moins de 10 minutes à pied. Côté transports en commun, on trouve huit gares à moins de 10 minutes en voiture. Il y a un accès à l'autoroute A23 à 1 km. Il y a une bibliothèque, un tennis, un supermarché, des commerces, deux boulangeries, une boucherie-charcuterie et une supérette à proximité du bien.
Elle est à vendre pour la somme de 318 340 €.
N'hésitez pas à prendre contact avec notre agence (Christian SMOLAREK : 06-71-36-79-31) pour obtenir de plus amples informations sur cette maison. Donnez vie à vos projets immobiliers avec Maisons France Confort Valenciennes.

Mentions légales

Terrain proposé par un partenaire foncier selon disponibilités et autorisation de publicité au prix de 89 000 €. Hors droit d'enregistrement et frais de notaire. Terrain + Maison proposés au prix de 318 340 € (Hors branchements et raccordements, papiers peints, peintures, revêtement de sol dans les chambres. Tarif modifiable sans préavis). Etiquette énergie : A. Différents modèles disponibles pour ce terrain. Assurances et garanties du constructeur (RC professionnelle, décennale, dommage ouvrage, garantie de remboursement de l'acompte, livraison à prix et délai convenu) : https://www.maisons-france-confort.fr/mentions-legales/. HEXAOM Services est enregistré auprès de l'ORIAS en tant que Courtier en financement, Niveau 1, sous le numéro 14001345.

Contactez l'agence de Valenciennes

03 27 09 13 49

    * Champs obligatoires

    Vos informations sont traitées par HEXAOM et transmises à un conseiller commercial qui vous contactera afin de répondre à votre demande. Les plans et images présentés sur notre site sont la propriété d’HEXAOM et ne peuvent pas être reproduits sans son accord. Pour retrouver notre politique de protection des données personnelles et exercer vos droits conformément à la « loi informatique et liberté » cliquez-ici.