Maison neuve à
La Vendue-Mignot
(10800) Référence :
SBLAVENDUEMIGNOT_1
Prix du projet : Maison avec Terrain
prix 230 000 €
- 5 pièces
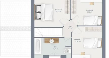
- 3 chambres
- Surface maison 80 m2
Réalisez Votre projet de construction sur la commune de la vendue Mignot
Maisons France Confort vous présente aux Bordes Aumont cette maison de 5 pièces de 80 m².
Cette maison se compose de 3 chambres, une cuisine 1 salle de bains et un garage. Cette maison est neuve.
Le terrain de la propriété s'étend sur 1860 m².
Elle est proposée à l'achat pour 230000 €. Hors frais annexes
N'hésitez pas à prendre contact avec notre agence Sandrine BOUCHOUX : O6-70-88-10-69 pour tout renseignement sur ce projet. Maisons France Confort TROYES est là pour vous accompagner dans tous vos projets immobiliers.
Annonce proposée par un Agent Commercial Partenaire.
Mentions légales
Terrain proposé par un partenaire foncier selon disponibilités et autorisation de publicité au prix de 45 000 €. Hors droit d'enregistrement et frais de notaire. Terrain + Maison proposés au prix de 230 000 € (Hors branchements et raccordements, papiers peints, peintures, revêtement de sol dans les chambres. Tarif modifiable sans préavis). Etiquette énergie : A. Différents modèles disponibles pour ce terrain. Assurances et garanties du constructeur (RC professionnelle, décennale, dommage ouvrage, garantie de remboursement de l'acompte, livraison à prix et délai convenu) : https://www.maisons-france-confort.fr/mentions-legales/. HEXAOM Services est enregistré auprès de l'ORIAS en tant que Courtier en financement, Niveau 1, sous le numéro 14001345.Agence Maisons France Confort de Troyes (10000)
- Téléphone :
- 03 25 82 69 80
- Adressse :
- 142 Avenue Pierre Brossolette
10000 Troyes, France
