Maison neuve à
La Vieux-Rue
(76160) Référence :
LC2419745_1
Prix du projet : Maison avec Terrain
prix 197 599 €
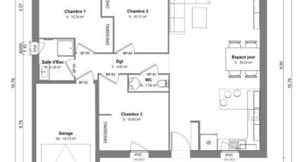
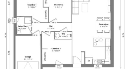
- 4 pièces
- 3 chambres
- Surface maison 76 m2
Votre projet de construction est prêt!!
Il se situe à la Vieux Rue 76160 dans un nouveau lotissement, peu de voisinage, sur un terrain déjà viabilisé, assainissement collectif!!
Cette maison comprend 3 chambres, un espace de vie cuisine/séjour ouvert, un garage et une salle d'eau commune, les menuiseries sont en pvc, et le système de chauffage est une Pac Air Air..
Je vous indiquerai les frais annexes à ajouter à ce projet!!
Maisons France Confort, fondateur du Groupe HEXAOM, vous promet un projet durable.
Laissez moi vous accompagner de A à Z, libérez vous des recherches épuisantes et offrez vous un vrai investissement avec un DPE en classe A!!!
Je m'appelle Lindsay COLLAY, et vous pouvez me contacter O6 67 66 O8 77
Mentions légales
Terrain proposé par un partenaire foncier selon disponibilités et autorisation de publicité au prix de 71 000 €. Hors droit d'enregistrement et frais de notaire. Terrain + Maison proposés au prix de 126 599 € (Hors branchements et raccordements, papiers peints, peintures, revêtement de sol dans les chambres. Tarif modifiable sans préavis). Etiquette énergie : A. Différents modèles disponibles pour ce terrain. Assurances et garanties du constructeur (RC professionnelle, décennale, dommage ouvrage, garantie de remboursement de l'acompte, livraison à prix et délai convenu) : https://www.maisons-france-confort.fr/mentions-legales/. HEXAOM Services est enregistré auprès de l'ORIAS en tant que Courtier en financement, Niveau 1, sous le numéro 14001345.Agence Maisons France Confort de Sainte-Marie-des-Champs (76190)
- Téléphone :
- 02 32 98 94 90
- Adressse :
- 74 avenue René Coty
76190 Sainte-Marie-des-Champs, France
