Maison neuve à
Labouheyre
(40210) Référence :
LC2484449_1
Prix du projet : Maison avec Terrain
prix 270 000 €
- 4 pièces
- 3 chambres
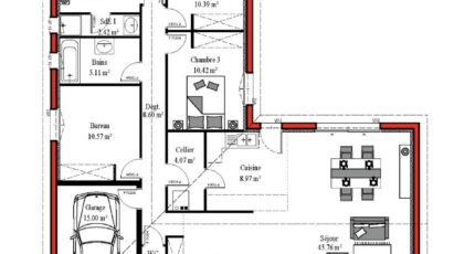
- Surface maison 125 m2
VENTE d'une maison T4 (125 m²) à Labouheyre
MAISON 4 PIÈCES NEUVE
À vendre : localisée à 43 km de l'océan Atlantique, nous sommes heureux de vous proposer cette maison de 4 pièces de plain-pied de 125 m² à Labouheyre (40210). Son intérieur dispose de trois chambres, d'une cuisine et d'une salle de bains.
Le terrain de la propriété s'étend sur 623 m².
La maison est neuve.
Il y a l'École Élémentaire A et l'École Primaire Anne Sylvestre à moins de 10 minutes à pied et une crèche. Côté transports, on trouve la gare Labouheyre à proximité. On trouve un accès à l'autoroute A63 à 2 km. Il y a deux tennis, trois commerces, deux supermarchés, deux boulangeries et un bureau de poste à quelques minutes.
Son prix de vente est de 270 000 €.
Contactez Laurent CHAMPEIL (tél : 05-57-15-12-37) pour plus de renseignements sur cette maison. Batisoft La Teste-de-Buch est là pour vous accompagner dans toutes vos démarches.
Mentions légales
Idée de réalisation en modèle prêt à décorer sur l’un de nos terrains partenaires, sous réserve de disponibilités. Voir détails en agence.Agence Batisoft de La Teste-de-Buch (33260)
- Téléphone :
- 05 57 15 12 37
- Adressse :
- 27, Boulevard de Cazaux
33260 La Teste-de-Buch, France
