Maison neuve à
Lacourt-Saint-Pierre
(82290) Référence :
CE2406812_1
Prix du projet : Maison avec Terrain
prix 344 784 €
- 6 pièces
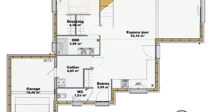
- 5 chambres
- Surface maison 114 m2
VENTE : maison de 6 pièces (114 m²) à Lacourt-Saint-Pierre avec Maisons France Confort de Tournefeuille au 05.61.16.47.77
MAISON 6 PIÈCES NEUVE - PROCHE DE MONTAUBAN
À deux pas de Montauban, votre agence Maisons France Confort Tournefeuille est ravie de vous présenter en vente à Lacourt-Saint-Pierre (82290), cette maison de 6 pièces de 114 m². Elle offre cinq chambres, une cuisine et deux salles de bains.
Le terrain de la propriété s'étend sur 2 600 m².
Il s'agit d'une maison de 2 niveaux. Elle est neuve.
On trouve une école primaire dans le quartier. Côté transports en commun, il y a trois gares (La Ville-Dieu-du-Temple, Montbartier et Montauban Ville Bourbon) à moins de 10 minutes en voiture. Les autoroutes A20 et A62 sont accessibles à moins de 8 km.
Elle est proposée à l'achat pour 344 784 €.
Contactez notre constructeur Maisons France Confort de Tournefeuille au 05.61.16.47.77 pour tout renseignement sur cette maison. Maisons France Confort Tournefeuille vous accompagne à toutes les étapes de votre projet et dans tous vos projets immobiliers.
Annonce proposée par un Agent Commercial Partenaire.
Mentions légales
Terrain proposé par un partenaire foncier selon disponibilités et autorisation de publicité au prix de 75 000 €. Hors droit d'enregistrement et frais de notaire. Terrain + Maison proposés au prix de 344 784 € (Hors branchements et raccordements, papiers peints, peintures, revêtement de sol dans les chambres. Tarif modifiable sans préavis). Etiquette énergie : A. Différents modèles disponibles pour ce terrain. Assurances et garanties du constructeur (RC professionnelle, décennale, dommage ouvrage, garantie de remboursement de l'acompte, livraison à prix et délai convenu) : https://www.maisons-france-confort.fr/mentions-legales/. HEXAOM Services est enregistré auprès de l'ORIAS en tant que Courtier en financement, Niveau 1, sous le numéro 14001345.Agence Maisons France Confort de Tournefeuille (31170)
- Téléphone :
- 05 61 16 47 77
- Adressse :
- 114 chemin de Larramet
31170 Tournefeuille, France
