Maison neuve à
Lagraulet-Saint-Nicolas
(31480) Référence :
SP2489525_3
Prix du projet : Maison avec Terrain
prix 234 600 €
- 5 pièces
- 4 chambres
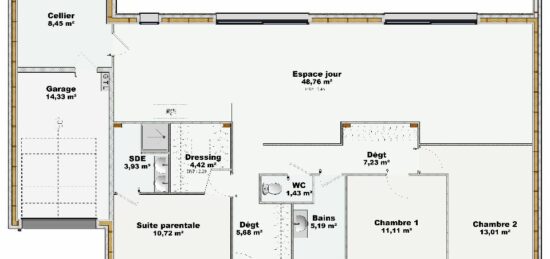
- Surface maison 101 m2
Lagraulet-Saint-Nicolas : maison T5 (101 m²) en vente
PROCHE DE COLOMIERS - MAISON 5 PIÈCES NEUVE
À vendre : située à quelques kilomètres de Colomiers, à Lagraulet-Saint-Nicolas (31480), nous sommes ravis de vous proposer cette maison de 5 pièces de plain-pied de 101 m².
Elle dispose de quatre chambres, d'une cuisine et d'une salle de bains. La maison est neuve.
Le terrain de la propriété est de 1 000 m².
Plusieurs écoles (maternelle, élémentaire, primaire et collège) sont implantées à moins de 10 minutes en voiture. On trouve trois tennis, des bibliothèques, trois commerces, trois épiceries, deux boucheries-charcuteries et un bureau de poste à quelques minutes à peine. Le marché Centre-Ville a lieu chaque mercredi matin.
Elle est proposée à l'achat pour 234 600 €.Lagraulet-Saint-Nicolas : maison T6 (125 m²) à vendre
MAISON 6 PIÈCES NEUVE - PROCHE DE COLOMIERS
En vente : à 28 km de Colomiers, nous sommes heureux de vous présenter cette maison de 6 pièces de plain-pied de 125 m² à Lagraulet-Saint-Nicolas (31480). Elle se divise en cinq chambres, une cuisine et deux salles de bains.
Le terrain de la propriété est de 1 000 m².
La maison est neuve.
Il y a plusieurs écoles (maternelle, élémentaire, primaire et collège) à moins de 10 minutes en voiture. On trouve trois tennis, des bibliothèques, trois commerces, deux boucheries-charcuteries, un bureau de poste et trois épiceries dans les environs. Le marché Centre-Ville a lieu chaque mercredi matin.
Elle est à vendre pour la somme de 275 000 €.Le prix comprend le budget total : terrain + frais de Notaire + maison + raccordement + viabilité. sauf finition et décoration ( cuisine, pentures) et taxes
Prenez contact avec nous pour tout renseignement sur la maison ou sur les modalités de vente. Maisons France Confort Tournefeuille est là pour vous accompagner à toutes les étapes de l'achat.
Contactez nous pour obtenir de plus amples renseignements sur cette maison et sur les démarches à suivre.
Annonce p
Mentions légales
Terrain proposé par un partenaire foncier selon disponibilités et autorisation de publicité au prix de 50 000 €. Hors droit d'enregistrement et frais de notaire. Terrain + Maison proposés au prix de 234 600 € (Hors branchements et raccordements, papiers peints, peintures, revêtement de sol dans les chambres. Tarif modifiable sans préavis). Etiquette énergie : A. Différents modèles disponibles pour ce terrain. Assurances et garanties du constructeur (RC professionnelle, décennale, dommage ouvrage, garantie de remboursement de l'acompte, livraison à prix et délai convenu) : https://www.maisons-france-confort.fr/mentions-legales/. HEXAOM Services est enregistré auprès de l'ORIAS en tant que Courtier en financement, Niveau 1, sous le numéro 14001345.Agence Maisons France Confort de Tournefeuille (31170)
- Téléphone :
- 05 61 16 47 77
- Adressse :
- 114 chemin de Larramet
31170 Tournefeuille, France
