Maison neuve à
Laluque
(40465) Référence :
CP2480045_2
Prix du projet : Maison avec Terrain
prix 260 000 €
- 4 pièces
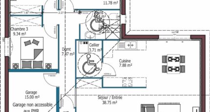
- 3 chambres
- Surface maison 95 m2
Cécile PÉNICAUT des maisons MCA vous propose d'adapter le modèle Atlanta, sur cette jolie parcelle de 710m², située sur la commune de Laluque, à 20 Minutes de Dax, 15 minutes de Castets et 30 minutes des plages Landaises. 🚗
Dédié aux investisseurs, laissez-vous séduire par ce modèle de maison en L, entièrement adapté aux normes PMR. Avec son garage intégré et ses 3 chambres, chacune disposant d'un emplacement placard, cette villa lumineuse et généreuse facilitera le quotidien des familles. La cuisine est en partie ouverte sur le vaste salon-séjour tourné vers le jardin. Les lignes définies par le porche apportent une touche d'originalité à cette maison.
Vous serez séduits par le beau volume de ses chambres, et la grande luminosité de son espace de vie.
Le prix affiché comprend le terrain, les frais de notaire, les frais de raccordements et de pluviales, les frais annexes (taxe aux raccordements, bornage), et cette maison livrée prête à décorer.
N'attendez plus, contactez vite Cécile PÉNICAUT à l'agence MCA Saint Paul Lès Dax , afin qu'elle vous guide dans les démarches et vous accompagne dans ce projet de construction personnalisé 🗝️🌟🏡
Mentions légales
Idée de réalisation en modèle prêt à décorer sur l'un de nos terrains partenaires, sous réserve de disponibilités. Voir détails en agence.Agence Maisons de la Côte Atlantique de Saint-Paul-lès-Dax (40990)
- Téléphone :
- 05 58 35 44 71
- Adressse :
- 34 avenue de la liberté
40990 Saint-Paul-lès-Dax, France
