Maison neuve à
Laluque
(40465) Référence :
JT2480120_3
Prix du projet : Maison avec Terrain
prix 283 400 €
- 5 pièces
- 3 chambres
- Surface maison 107 m2
🏠✨ Le Modèle Lumière : Une Vie de Rêve Vous Attend sur ce Terrain de 728m² ! ✨🌳
Jessyca THÉNEAU des maisons MCA vous dévoile une opportunité exceptionnelle à Laluque, à seulement 20 minutes de Dax, et 15 minutes de Castets avec l'accès à l'A63.
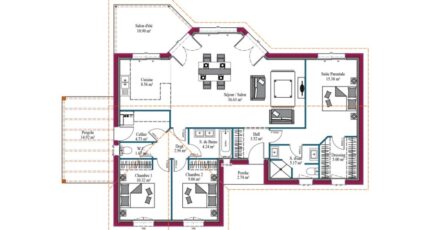
🏡 Caractéristiques du Modèle Lumière: Cette maison contemporaine est composée d'un vaste salon prolongé par une cuisine ouverte, vous profiterez donc d'un espace de vie de plus de 45m². Grâce aux nombreuses baies vitrées, le séjour est très lumineux et donne directement sur le jardin et la terrasse couverte.
Elle dispose également d'un espace nuit composé de deux chambres et une salle de bains, et à l'écart, une grande suite parentale de plus de 25 m², composée d'un dressing et d'une salle d'eau indépendante.
🌟✨ Points Forts : Vous serez séduits par le grand et lumineux espace de vie, et la suite parentale indépendante.
💰 Tout Inclus dans le Prix : Terrain, frais de notaire, frais annexes (raccordements, asl, bornage), et la maison prête à décorer. Aucune surprise, juste la réalisation de votre rêve.
📞 Contactez Jessyca THÉNEAU à l'agence MCA de Saint Paul Lès Dax, pour une étude gratuite et personnalisée. Laissez-vous guider vers votre chez-vous de rêve ! 🏠🌈
#ModèleLumière #ProjetConstruction #MCAImmobilier #VieDeRêve
Mentions légales
Idée de réalisation en modèle prêt à décorer sur l'un de nos terrains partenaires, sous réserve de disponibilités. Voir détails en agence.Agence Maisons de la Côte Atlantique de Saint-Paul-lès-Dax (40990)
- Téléphone :
- 05 58 35 44 71
- Adressse :
- 34 avenue de la liberté
40990 Saint-Paul-lès-Dax, France
