Maison neuve à
Landiras
(33720) Référence :
AB2480375_1
Prix du projet : Maison avec Terrain
prix 245 000 €
- 4 pièces
- 3 chambres
- Surface maison 100 m2
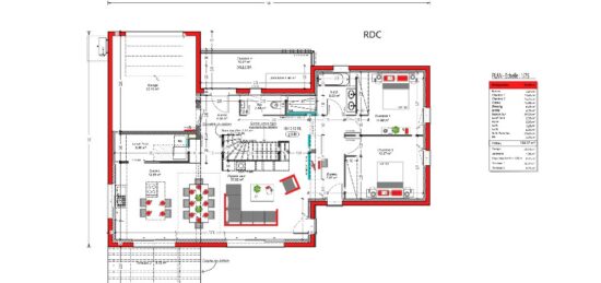
Alexandra BARRAILH des maisons MCA, vous propose d'adapter le modèle Pavot de 100m2 sur ce terrain de 700m2 situé sur la commune de Landiras.
Cette maison possède un grand salon-séjour tourné vers le jardin, une cuisine ouverte avec son cellier attenant, ce qui offre un espace jour de plus de 47m2, le coté nuit est composé de 3 chambres avec placards, salle de bains et wc séparés. L'une des chambres est une suite parentale.
Cette construction est complètement modifiable, vous pourrez notamment rajouter un garage de la surface souhaitée.
Le projet comprend déjà de belles prestations comme notamment la fourniture et pose du carrelage, les sanitaires, les volets roulants électriques, les débords de toit...
Frais de notaire compris.
N'attendez plus, contactez vite Alexandra BARRAILH MCA Artigues-près-Bordeaux, afin qu'elle vous guide dans les démarches et vous accompagne dans votre projet de construction personnalisé.
Mentions légales
Idée de réalisation en modèle prêt à décorer sur l'un de nos terrains partenaires, sous réserve de disponibilités. Voir détails en agence.Agence Maisons de la Côte Atlantique de Artigues-près-Bordeaux (33370)
- Téléphone :
- 05 56 33 23 32
- Adressse :
- 110, Avenue du Peyrou
33370 Artigues-près-Bordeaux, France
