Maison neuve à 
  Langon
 (33210)  Référence :
 ML2289233_5 
Prix du projet : Maison avec Terrain
prix 243 600 €
- 4 pièces
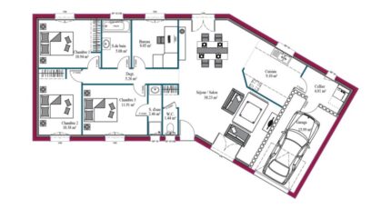
- 3 chambres
- Surface maison 100 m2
VENTE : maison de 4 pièces (100 m²) à Verdelais
IDÉALEMENT SITUÉE - MAISON 4 PIÈCES NEUVE
À vendre : notre agence Maisons de la Côte Atlantique Langon est ravie de vous présenter cette maison de 4 pièces de plain-pied de 100 m² idéalement située dans Verdelais (33490).
Conçue de plain-pied, elle offre trois chambres, une cuisine et une salle de bains. La maison est neuve.
Le terrain de la propriété est de 702 m².
Cette maison est située dans un secteur convoité. Une école primaire y est implantée. Côté transports, il y a sept gares à moins de 10 minutes en voiture. L'autoroute A62 est accessible à 5 km. On trouve une bibliothèque à quelques minutes.
Son prix de vente est de 243 600 €.
Prenez contact avec Maryne LAGORCE (O6-81-35-86-92) pour tout renseignement sur la propriété, sur les démarches à suivre ou sur les modalités de vente. Concrétisez vos projets immobiliers avec Maisons de la Côte Atlantique Langon.
Agence Maisons de la Côte Atlantique de Langon (33210)
- Téléphone :
- 05 56 76 82 20
- Adressse :
-  2, Rue du Onze Novembre
 33210 Langon, France
 
  
  
  
  
  
  
  
 