Maison neuve à
Langon
(33210) Référence :
ML2481632_3
Prix du projet : Maison avec Terrain
prix 228 750 €
- 5 pièces
- 3 chambres
- Surface maison 90 m2
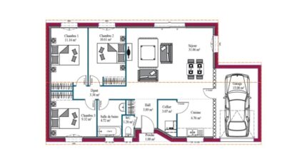
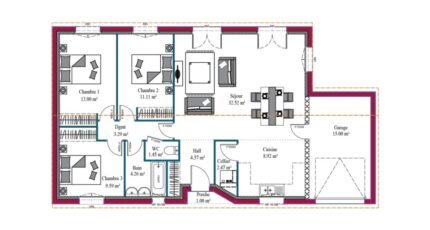
Maison T5 (90 m²) à vendre à Langon
MAISON 5 PIÈCES NEUVE
Ayez le coup de coeur pour cette maison de 5 pièces de plain-pied de 90 m² en vente à Langon (33210).
Conçue de plain-pied, elle comporte trois chambres, une cuisine et une salle de bains. La maison est neuve.
Le terrain de la propriété s'étend sur 1 000 m².
Il y a tous les types d'établissements scolaires (de la maternelle au lycée) à moins de 10 minutes à pied. Côté transports en commun, on trouve la gare Langon à quelques pas de la maison. On trouve un accès à l'autoroute A62 à 2 km. Il y a de nombreux commerces, deux boucheries-charcuteries, trois épiceries et un bureau de poste dans les environs. Enfin, le marché Centre-Ville anime les environs.
Elle est à vendre pour la somme de 228 750 €.
N'hésitez pas à prendre contact avec notre agence (LAGORCE Maryne : o6-81-35-86-92) pour obtenir de plus amples informations sur ce bien, sur les démarches à suivre ou sur les modalités de vente. Maisons de la Côte Atlantique Langon vous accompagne à toutes les étapes de l'achat et dans tous vos projets immobiliers.
Mentions légales
Idée de réalisation en modèle prêt à décorer sur l'un de nos terrains partenaires, sous réserve de disponibilités. Voir détails en agence.Agence Maisons de la Côte Atlantique de Langon (33210)
- Téléphone :
- 05 56 76 82 20
- Adressse :
- 2, Rue du Onze Novembre
33210 Langon, France
