Maison neuve à
Langon
(33210) Référence :
ML2481632_5
Prix du projet : Maison avec Terrain
prix 242 750 €
- 4 pièces
- 3 chambres
- Surface maison 100 m2
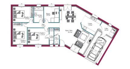
Langon : maison T4 (100 m²) en vente
MAISON 4 PIÈCES NEUVE
En vente : à Langon (33210), découvrez cette maison de 4 pièces de plain-pied de 100 m² et de 1 000 m² de terrain.
Son intérieur compte trois chambres, une cuisine et une salle de bains. Cette maison est neuve.
On trouve tous les types d'établissements scolaires (de la maternelle au lycée) à moins de 10 minutes à pied. Niveau transports en commun, il y a la gare Langon dans les environs. Il y a un accès à l'autoroute A62 à 2 km. On trouve de nombreux commerces, deux boucheries-charcuteries, trois épiceries et un bureau de poste à proximité. Le marché Centre-Ville anime le quartier.
Elle est proposée à l'achat pour 242 750 €.
N'hésitez pas à prendre contact avec notre agence (Maryne LAGORCE : O6-81-35-86-92) pour obtenir de plus amples informations sur la maison. Maisons de la Côte Atlantique Langon est là pour vous accompagner à toutes les étapes de l'achat.
Mentions légales
Idée de réalisation en modèle prêt à décorer sur l'un de nos terrains partenaires, sous réserve de disponibilités. Voir détails en agence.Agence Maisons de la Côte Atlantique de Langon (33210)
- Téléphone :
- 05 56 76 82 20
- Adressse :
- 2, Rue du Onze Novembre
33210 Langon, France
