Maison neuve à
Lanta (31570) Référence : TL2493692_1

Prix du projet : Maison avec Terrain

prix 343 000 €

  • 6 pièces
  • 4 chambres
  • Surface maison 130 m2

LANTA

Terrain de 800 m² + Maison de 130 m² + Garage de 19 m²
À partir de 343 000 € hors frais de notaire et hors frais annexes

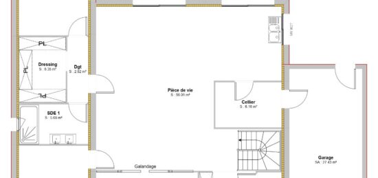
Votre maison est composée, en rez-de-chaussée, d'une suite parentale de 20 m² avec WC, d'un grand dressing et d'une salle d'eau privative. La partie jour de 41 m² comprend une entrée, un WC, un espace de vie avec cuisine ouverte, un cellier et un garage. À l'étage, la zone nuit dispose d'une salle de bains avec WC séparés et de 3 chambres, dont une suite parentale avec salle d'eau privative et dressing. Vous apprécierez son harmonie naturelle et la qualité de ses finitions.

Sur Cette magnifique parcelle idéalement situé dans la commune de Lanta. Ce terrain entièrement viabilisé sera parfait pour accueillir votre projet de construction. Lanta dispose de toutes les commodités. N'attendez plus !
La modification des plans et du niveau de prestations est possible selon vos envies et votre budget.

Maisons France Confort vous offre, dans votre contrat de construction de maison individuelle : étude de financement confidentielle et gratuite, garanties de livraison au prix et dans les délais convenus, garantie de parfait achèvement, garantie de bon fonctionnement, garantie décennale et assurance dommages ouvrage, garantie de remboursement de l'acompte perçu, garantie des normes RE2020 ainsi qu'une étude de sol.

Pour toute information, contactez l'agence MAISONS FRANCE CONFORT de Saint-Orens au 05 61 73 11 84.

Annonce proposée par un Agent Commercial Partenaire.

Mentions légales

Terrain proposé par un partenaire foncier selon disponibilités et autorisation de publicité au prix de 109 000 €. Hors droit d'enregistrement et frais de notaire. Terrain + Maison proposés au prix de 343 000 € (Hors branchements et raccordements, papiers peints, peintures, revêtement de sol dans les chambres. Tarif modifiable sans préavis). Etiquette énergie : A. Différents modèles disponibles pour ce terrain. Assurances et garanties du constructeur (RC professionnelle, décennale, dommage ouvrage, garantie de remboursement de l'acompte, livraison à prix et délai convenu) : https://www.maisons-france-confort.fr/mentions-legales/. HEXAOM Services est enregistré auprès de l'ORIAS en tant que Courtier en financement, Niveau 1, sous le numéro 14001345.

Contactez l'agence de Saint-Orens-de-Gameville

05 61 73 11 84

    * Champs obligatoires

    Vos informations sont traitées par HEXAOM et transmises à un conseiller commercial qui vous contactera afin de répondre à votre demande. Les plans et images présentés sur notre site sont la propriété d’HEXAOM et ne peuvent pas être reproduits sans son accord. Pour retrouver notre politique de protection des données personnelles et exercer vos droits conformément à la « loi informatique et liberté » cliquez-ici.