Maison neuve à
Laruscade
(33620) Référence :
IN2405847-1_1
Prix du projet : Maison avec Terrain
prix 310 000 €
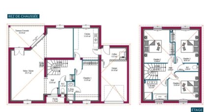
- 5 pièces
- 4 chambres
- Surface maison 130 m2
EXCLUSIVITÉ - Contacter Isabelle NADAU : 07 83 16 38 49
VENTE - MAISON 5 PIÈCES 130 m² - LARUSCADE (33620)
MAISON NEUVE - 5 PIÈCES - ENVIRONNEMENT CALME
Maisons de la Côte Atlantique Blaye vous propose cette maison neuve de 130 m² située à Laruscade, implantée sur un terrain de 500 m². Conçue sur deux niveaux, elle offre quatre chambres, une cuisine, un séjour confortable et une salle de bains. La maison est entièrement neuve.
L'École Primaire Manon Cormier se trouve à moins de 10 minutes à pied, offrant un cadre pratique pour la vie de famille. Les gares de Cavignac, Saint-Mariens-Saint-Yzan et Gauriaguet sont accessibles en moins de 10 minutes en voiture. La nationale N10 se situe à seulement 3 km, facilitant vos déplacements quotidiens.
À proximité, vous trouverez également un court de tennis, une boulangerie, un supermarché et une boucherie-charcuterie, permettant de profiter de toutes les commodités essentielles.
La maison est proposée à la vente au prix de 310 000 € - sans frais annexes.
Mentions légales
Idée de réalisation en modèle prêt à décorer sur l'un de nos terrains partenaires, sous réserve de disponibilités. Voir détails en agence.Agence Maisons de la Côte Atlantique de Blaye (33390)
- Téléphone :
- 05 57 32 87 63
- Adressse :
- 64, Rue Saint Romain
33390 Blaye, France
