Maison neuve à
Laruscade
(33620) Référence :
IN2403357-4_6
Prix du projet : Maison avec Terrain
prix 200 000 €
- 4 pièces
- 2 chambres
- Surface maison 85 m2
Contacter Isabelle Nadau - 07 83 16 38 49
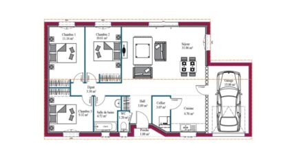
Maison neuve T4 (85 m²) - Laruscade
Prix : 200 000 € (EXCLUSIVITÉ MCA Blaye)
Prix hors frais de notaire, taxes et raccordements.
Proposition de terrain avec un projet de construction.
Maison neuve de plain-pied de 65 m² située à Laruscade (33620), à 25 km de l'océan Atlantique. Elle se compose d'une pièce de vie avec cuisine, de deux chambres et d'une salle de bains. Le tout sur un terrain de 500 m², dans un environnement calme et agréable.
L'École Primaire Manon Cormier se trouve à moins de dix minutes à pied. Les gares de Cavignac, Saint-Mariens-Saint-Yzan et Gauriaguet sont accessibles en moins de dix minutes en voiture. La nationale N10 se situe à seulement 3 km. Une boulangerie, un supermarché, une boucherie-charcuterie ainsi qu'un court de tennis sont à proximité immédiate.
Terrain sous réserve de disponibilité. Visuels non contractuels.
Mentions légales
Idée de réalisation en modèle prêt à décorer sur l'un de nos terrains partenaires, sous réserve de disponibilités. Voir détails en agence.Agence Maisons de la Côte Atlantique de Blaye (33390)
- Téléphone :
- 05 57 32 87 63
- Adressse :
- 64, Rue Saint Romain
33390 Blaye, France
