Maison neuve à
Launaguet
(31140) Référence :
MH2468933_5
Prix du projet : Maison avec Terrain
prix 649 000 €
- 6 pièces
- 4 chambres
- Surface maison 180 m2
"Votre agence Maisons France Confort d'Aucamville vous propose ce beau projet maison + terrain sur la commune de Launaguet.
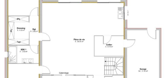
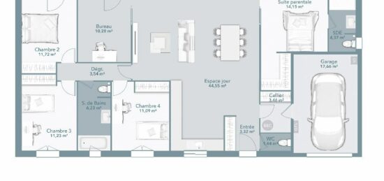
Cette maison de plain-pied de 180 m² avec toit terrasse a été pensée pour les grandes parcelles des paysages du sud de la France ! Elle est constituée de deux ailes perpendiculaires qui lui donne une architecture en L et des espaces parfaitement délimités, autre avantage de cette composition, le cadrage sur le paysage en protégeant le jardin, les chambres et le séjour des regards extérieurs. La maison se caractérise par de grands espaces ouverts sur le jardin, au centre de la maison, le séjour de 67 m² avec deux grandes baies. Aux extrémités de cette pièce centrale, on retrouve, d'un côté une suite parentale avec une grande salle de bains, des WC et deux dressings, et de l'autre côté, une salle de bains, des WC et 3 grandes chambres de plus de 13 m² avec chacune des rangements. La composition idéale pour garantir l'intimité de chacun !
prix: 649000€hf
Pour toutes informations, contactez l'agence MAISONS FRANCE CONFORT d'Aucamville".
Annonce proposée par un Agent Commercial Partenaire.
Mentions légales
Terrain proposé par un partenaire foncier selon disponibilités et autorisation de publicité au prix de 199 000 €. Hors droit d'enregistrement et frais de notaire. Terrain + Maison proposés au prix de 649 000 € (Hors branchements et raccordements, papiers peints, peintures, revêtement de sol dans les chambres. Tarif modifiable sans préavis). Etiquette énergie : A. Différents modèles disponibles pour ce terrain. Assurances et garanties du constructeur (RC professionnelle, décennale, dommage ouvrage, garantie de remboursement de l'acompte, livraison à prix et délai convenu) : https://www.maisons-france-confort.fr/mentions-legales/. HEXAOM Services est enregistré auprès de l'ORIAS en tant que Courtier en financement, Niveau 1, sous le numéro 14001345.Agence Maisons France Confort de Aucamville (31140)
- Téléphone :
- 05 34 43 84 38
- Adressse :
- 17 chemin Bellegarrigues
31140 Aucamville, France
