Maison neuve à
Lazer
(05300) Référence :
BDS2406526_1
Prix du projet : Maison avec Terrain
prix 314 900 €
- 3 pièces
- 2 chambres
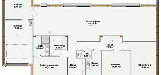
- Surface maison 83 m2
🏡 Construction d'une belle maison provençale en V
✨ Maison familiale avec terrasse couverte et garage
📍 Superbe terrain plat à Laser, à proximité de Sisteron, Gap et de la vallée
Laissez-vous séduire par ce projet de maison provençale en V, alliant charme, confort et fonctionnalité. Implantée sur un beau terrain plat, cette maison est idéale pour une vie de famille agréable, dans un environnement calme tout en restant proche des commodités et des axes principaux.
Une opportunité rare, parfaite pour concrétiser votre projet de construction dans un secteur recherché, avec une jolie vue et un cadre de vie privilégié.
🏗️ Construisez en toute confiance avec Maisons France Confort
Déjà plus de 100 000 familles nous ont fait confiance, Pourquoi pas Vous ?
Numéro 1 de la construction traditionnelle et ossature bois, nous vous accompagnons de la conception à la remise des clés.
Votre projet est sécurisé par un Contrat de Construction de Maison Individuelle (CCMI) comprenant :
Garantie de livraison à prix et délais convenus
Garantie décennale
Assurance dommages-ouvrage
Accompagnement personnalisé tout au long du projet
📞 Contact : Brice DA SILVA - Maisons France Confort Gap
06.28.31.68.03
Mentions légales
Terrain proposé par un partenaire foncier selon disponibilités et autorisation de publicité au prix de 73 000 €. Hors droit d'enregistrement et frais de notaire. Terrain + Maison proposés au prix de 314 900 € (Hors branchements et raccordements, papiers peints, peintures, revêtement de sol dans les chambres. Tarif modifiable sans préavis). Etiquette énergie : A. Différents modèles disponibles pour ce terrain. Assurances et garanties du constructeur (RC professionnelle, décennale, dommage ouvrage, garantie de remboursement de l'acompte, livraison à prix et délai convenu) : https://www.maisons-france-confort.fr/mentions-legales/. HEXAOM Services est enregistré auprès de l'ORIAS en tant que Courtier en financement, Niveau 1, sous le numéro 14001345.Agence Maisons France Confort de Gap (05000)
- Téléphone :
- 04 92 51 38 48
- Adressse :
- 40 rue Carnot
05000 Gap, France
