Maison neuve à
Le Blanc (36300) Référence : KG2430986_7

Prix du projet : Maison avec Terrain

prix 303 800 €

  • 5 pièces
  • 4 chambres
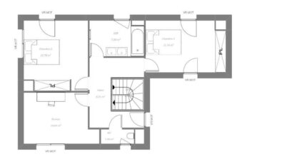
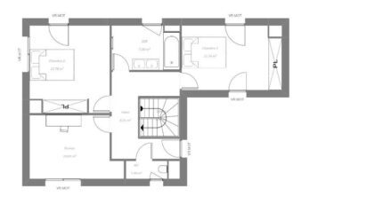
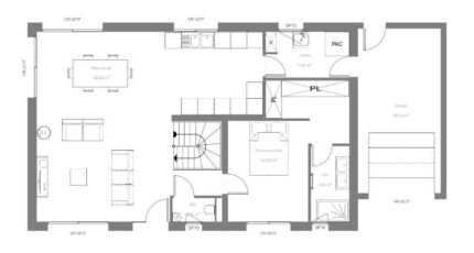
  • Surface maison 120 m2

Le Blanc : Projet de construction maison F5 (120 m²)
EMPLACEMENT PRIVILÉGIÉ - MAISON 5 PIÈCES NEUVE
Maisons Bruno Petit MJB Châteauroux vous présente cette maison de 5 pièces de 120 m² en vente bénéficiant d'un emplacement d'exception dans Le Blanc (36300).
Cette maison possède 2 niveaux. Elle dispose de quatre chambres, d'une cuisine et de deux salles de bains. Cette maison est neuve.
Le terrain de la propriété s'étend sur 2 600 m².
Cette propriété se situe dans un secteur prisé. Des établissements scolaires de tous types (de la maternelle au lycée) sont implantés à moins de 10 minutes à pied. On trouve un tennis, un bassin de natation, des commerces, des boulangeries, deux supermarchés, un bureau de poste et une supérette dans les environs. Ne manquez pas le marché Place de Gaulle tous les samedis matin.
Son prix de vente est de 303 800 €.
Contactez Kevin GRIMAUD (tél : *6-22-14-89-67) pour toute question sur la maison, sur les modalités de vente ou sur les démarches à suivre. Faites de vos projets immobiliers une réalité avec Maisons Bruno Petit MJB Châteauroux.

Mentions légales

Terrain proposé par un partenaire foncier selon disponibilités et autorisation de publicité au prix de 20 000 €. Hors droit d'enregistrement et frais de notaire. Terrain + Maison proposés au prix de 303 800 € (Hors branchements et raccordements, papiers peints, peintures, revêtement de sol dans les chambres. Tarif modifiable sans préavis). Etiquette énergie : A. Différents modèles disponibles pour ce terrain. Assurances et garanties du constructeur (RC professionnelle, décennale, dommage ouvrage, garantie de remboursement de l'acompte, livraison à prix et délai convenu) : https://www.maisons-brunopetit.fr/mentions-legales/.

Contactez l'agence de Châteauroux

02 54 22 66 24

    * Champs obligatoires

    Vos informations sont traitées par HEXAOM et transmises à un conseiller commercial qui vous contactera afin de répondre à votre demande. Les plans et images présentés sur notre site sont la propriété d’HEXAOM et ne peuvent pas être reproduits sans son accord. Pour retrouver notre politique de protection des données personnelles et exercer vos droits conformément à la « loi informatique et liberté » cliquez-ici.