Maison neuve à
Le Bouscat (33110) Référence : TC2389351_1

Prix du projet : Maison avec Terrain

prix 1 050 000 €

  • 4 pièces
  • 3 chambres
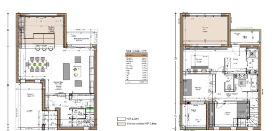
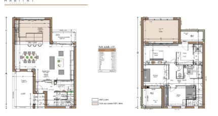
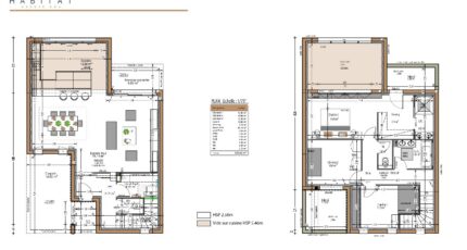
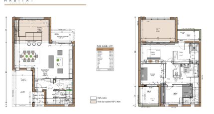
  • Surface maison 130 m2

Sur ce terrain idéalement situé au Bouscat, un projet de construction de maison contemporaine de 130 m² habitables est proposé, offrant des prestations haut de gamme et une architecture élégante. La maison se développe autour d'un vaste espace de vie lumineux avec un spectaculaire vide sur séjour, apportant volume et modernité, et s'ouvre largement sur le jardin exposé ouest. Elle comprend trois chambres, dont une suite parentale pour un confort optimal au quotidien. Conçue selon les dernières normes, elle intègre des équipements domotiques permettant de piloter éclairage, chauffage et volets à distance, garantissant à la fois confort, sécurité et économies d'énergie. Ce projet allie design contemporain, fonctionnalité et qualité de vie dans l'un des secteurs les plus recherchés du Bouscat.
Contact : Thomas Carré : SO9 Habitat : O637033308

Mentions légales

Terrain proposé par un partenaire foncier selon disponibilité dans le cadre d’un projet de construction avec So'9 Habitat. Les descriptions, photographies, surfaces et prix illustrant l'annonce sont fournies à titre indicatif et ne sont pas contractuels. Non soumis au DPE. Différents modèles disponibles.

Contactez l'agence de Le Bouscat

05 56 04 87 69

    * Champs obligatoires

    Vos informations sont traitées par HEXAOM et transmises à un conseiller commercial qui vous contactera afin de répondre à votre demande. Les plans et images présentés sur notre site sont la propriété d’HEXAOM et ne peuvent pas être reproduits sans son accord. Pour retrouver notre politique de protection des données personnelles et exercer vos droits conformément à la « loi informatique et liberté » cliquez-ici.