Maison neuve à
Le Breuil-en-Auge
(14130) Référence :
AV2319727_2
Prix du projet : Maison avec Terrain
prix 228 700 €
- 5 pièces
- 3 chambres
- Surface maison 75 m2
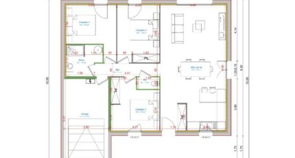
Maisons France Confort Lisieux vous propose de construire cette maison de plain pied de 78m².
Il se compose d'une entrée avec placard, une belle pièce de vie lumineuse
Dans l'espace nuit, 3 chambres et une salle de bain.
Un accès au garage depuis la maison.
Belles prestations :
- carrelage 45*45
- menuiserie encastrer à la maçonnerie
- volet roulant électrique somfy
- système de chauffage très économique
Pour une étude de construction, merci de prendre rdv avec Mme Vaudry Angélique 06.48.23.57.76
Mentions légales
Terrain proposé par un partenaire foncier selon disponibilités et autorisation de publicité au prix de 78 700 €. Hors droit d'enregistrement et frais de notaire. Maison proposée, avec un contrat de construction de maison individuelle, dans le cadre de la loi du 19/12/1990, au prix de 150 000 € (Hors branchements et raccordements, papiers peints, peintures, revêtement de sol dans les chambres, qui sont chiffrés dans les travaux qui restent à charge du client. Tarif modifiable sans préavis). Étiquette énergie : A. Différents modèles disponibles pour ce terrain. Assurances et garanties du constructeur comprises (RC professionnelle, décennale, dommage ouvrage).Agence Maisons France Confort de Lisieux (14100)
- Téléphone :
- 02 31 62 91 30
- Adressse :
- 41 boulevard Jeanne d'Arc
14100 Lisieux, France
