Maison neuve à
Le Castéra
(31530) Référence :
SP2404149_4
Prix du projet : Maison avec Terrain
prix 425 000 €
- 6 pièces
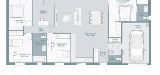
- 4 chambres
- Surface maison 115 m2
À Le Castéra, dans un environnement rare et très recherché, découvrez ce terrain à bâtir avec vue dégagée sur la campagne, offrant un cadre de vie paisible et verdoyant. Sa configuration en pente est idéale pour la réalisation d'une maison avec sous-sol, un vrai plus pour le confort et le rangement.
Sur ce terrain, Maisons France Confort vous propose un projet de maison personnalisée, conçu sur mesure selon vos envies, votre mode de vie et votre budget. Architecture, surfaces, agencement intérieur : tout est adaptable pour créer une maison qui vous ressemble, dans un cadre privilégié.
Le prix est particulièrement attractif et rare sur le secteur, pour un projet complet terrain + maison dans ce type d'environnement.
Projet proposé dans le cadre d'une construction avec Maisons France Confort Tournefeuille, hors frais annexes, et nous étudierons ensemble votre projet de maison personnalisée sur ce terrain, avant toute mise en relation avec notre partenaire foncier.
Pour plus d'informations ou pour étudier votre projet, contactez Maisons France Confort - agence de Tournefeuille au 05 61 16 47 77.
Annonce proposée par un Agent Commercial Partenaire.
Mentions légales
Terrain proposé par un partenaire foncier selon disponibilités et autorisation de publicité au prix de 106 000 €. Hors droit d'enregistrement et frais de notaire. Terrain + Maison proposés au prix de 425 000 € (Hors branchements et raccordements, papiers peints, peintures, revêtement de sol dans les chambres. Tarif modifiable sans préavis). Etiquette énergie : A. Différents modèles disponibles pour ce terrain. Assurances et garanties du constructeur (RC professionnelle, décennale, dommage ouvrage, garantie de remboursement de l'acompte, livraison à prix et délai convenu) : https://www.maisons-france-confort.fr/mentions-legales/. HEXAOM Services est enregistré auprès de l'ORIAS en tant que Courtier en financement, Niveau 1, sous le numéro 14001345.Agence Maisons France Confort de Tournefeuille (31170)
- Téléphone :
- 05 61 16 47 77
- Adressse :
- 114 chemin de Larramet
31170 Tournefeuille, France
