Maison neuve à
Le Cellier (44850) Référence : TD2295096_5

Prix du projet : Maison avec Terrain

prix 319 000 €

  • 5 pièces
  • 4 chambres
  • Surface maison 95 m2

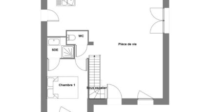
Le Cellier : maison F5 (95 m²) en vente
PROCHE DE NANTES - MAISON 5 PIÈCES NEUVE
À vendre : située à 45 km de l'océan Atlantique et à 19 km de Nantes, au Cellier (44850), nous sommes heureux de vous proposer cette maison de 5 pièces de 95 m² et de 450 m² de terrain.
Cette maison comporte 2 niveaux. Son intérieur offre quatre chambres, une cuisine et une salle de bains.
L'École Primaire Privée Saint Jean Bosco, l'École Maternelle Publique les Lonnières et l'École Élémentaire Publique les Lonnières sont implantées à moins de 10 minutes. Niveau transports en commun, il y a quatre gares à moins de 10 minutes en voiture. Il y a un accès à l'autoroute A11 à 10 km. On trouve un tennis, une boulangerie, une épicerie, une boucherie-charcuterie et un bureau de poste à quelques minutes du logement.
Son prix de vente est de 319 000 €.
Contactez notre agence (Thibault DUPONT : 02-51-83-13-00) pour obtenir de plus amples informations sur cette maison. Maisons de l'Avenir Orvault vous accompagne dans tous vos projets immobiliers et à toutes les étapes de votre projet.

Mentions légales

Maisons de l’Avenir, constructeur de maisons individuelles, propose en collaboration avec ses partenaires fonciers, une sélection de terrains constructibles, selon disponibilité, pour la construction de maisons neuves définies par le constructeur, avec un contrat de construction de maison individuelle, dans le cadre de la loi du 19/12/1990. Prix net, hors frais notariés, d'enregistrement et de publicité foncière

Terrain proposé au prix de : 100 000 €

Maison proposée au prix de : 219 000 €

Etiquette énergie : A. Assurances et garanties du constructeur (RC professionnelle, décennale, dommage ouvrage, Garantie de livraison à prix et délai convenu). https://www.maisonsdelavenir.com/mentions-legales/

Contactez l'agence de Orvault

02 51 83 13 00

    * Champs obligatoires

    Vos informations sont traitées par HEXAOM et transmises à un conseiller commercial qui vous contactera afin de répondre à votre demande. Les plans et images présentés sur notre site sont la propriété d’HEXAOM et ne peuvent pas être reproduits sans son accord. Pour retrouver notre politique de protection des données personnelles et exercer vos droits conformément à la « loi informatique et liberté » cliquez-ici.