Maison neuve à
Le Drennec
(29860) Référence :
JR2466716_2
Prix du projet : Maison avec Terrain
prix 324 460 €
- 5 pièces
- 4 chambres
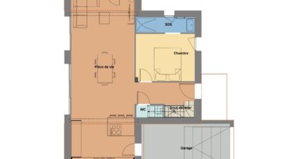
- Surface maison 110 m2
Maison F5 (110 m²) à vendre au Drennec
MAISON 5 PIÈCES NEUVE - PROCHE DE BREST
En vente : à quelques kilomètres de la mer et à quelques kilomètres de Brest, au Drennec (29860), votre agence Maisons de l'Avenir Guipavas est heureuse de vous proposer cette maison de 5 pièces de 110 m² et de 442 m² de terrain.
Cette maison compte 2 niveaux. Elle est composée de quatre chambres, d'une cuisine et de deux salles de bains.
Son prix de vente est de 324 460 €.
N'hésitez pas à prendre contact avec notre constructeur (ROPERS Jean ) pour tout renseignement sur cette maison. Maisons de l'Avenir Guipavas est là pour vous accompagner à toutes les étapes de votre projet.
Mentions légales
Terrain proposé par un partenaire foncier selon disponibilités et autorisation de publicité au prix de 57 460 €. Hors droit d'enregistrement et frais de notaire. Terrain + Maison proposés au prix de 324 460 € (Hors branchements et raccordements, papiers peints, peintures, revêtement de sol dans les chambres. Tarif modifiable sans préavis). Etiquette énergie : A. Différents modèles disponibles pour ce terrain. Assurances et garanties du constructeur (RC professionnelle, décennale, dommage ouvrage, garantie de remboursement de l'acompte, livraison à prix et délai convenu) : https://www.maisonsdelavenir.com/mentions-legales/.Agence Maisons de l'Avenir de Guipavas (29490)
- Téléphone :
- 02 98 03 90 90
- Adressse :
- 10 Rue de Poul Ar Feunteun
29490 Guipavas, France
