Maison neuve à
Le Gua
(17600) Référence :
EN2461239_3
Prix du projet : Maison avec Terrain
prix 269 500 €
- 4 pièces
- 3 chambres
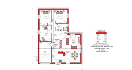
- Surface maison 85 m2
Etienne NEAU conseiller chez Alpha Constructions vous propose cette belle maison de 85 m², avec garage intégré. Parfaite pour une famille, cette maison possède son coin nuit comprenant, 3 chambres une salle de bain ainsi que son WC. Vous aurez également une belle pièce de vie avec la cuisine ouverte sur le salon et son cellier attenant.
Retrouvez moi, directement en agence à Royan ou par téléphone au O6-12-13-45-65 Alpha Constructions vous accompagne dans toutes vos démarches et à toutes les étapes de votre projet.
Mentions légales
Terrain proposé par un partenaire foncier selon disponibilité dans le cadre d’un projet de construction avec Alpha Constructions. Les descriptions, photographies, surfaces et prix illustrant l’annonce sont fournies à titre indicatif et ne sont pas contractuels. Non soumis au DPE. Différents modèles disponibles.Agence Alpha Constructions de Royan (17200)
- Téléphone :
- 05 56 06 31 92
- Adressse :
- 1 Rue de la Guinielle
17200 Royan, France