Maison neuve à
Le Magny (36400) Référence : TM2311679_3

Prix du projet : Maison avec Terrain

prix 152 600 €

  • 4 pièces
  • 3 chambres
  • Surface maison 85 m2

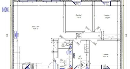
Maison de 4 pièces (85 m²) à vendre au Magny
IDÉALEMENT SITUÉE - MAISON 4 PIÈCES NEUVE
À vendre : idéalement située dans Le Magny (36400), Maisons Bruno Petit MJB Châteauroux vous présente cette maison de 4 pièces de plain-pied de 85 m² et de 1 230 m² de terrain. Conçue de plain-pied, elle offre trois chambres, une cuisine et une salle de bains.
La maison est neuve.
Cette maison est située dans un quartier attractif. L'École Primaire Jean Moulin est implantée à moins de 10 minutes à pied.
Son prix de vente est de 152 600 €.
Contactez Thomas MANIERE (06-15-51-71-54) pour tout renseignement sur la maison ou sur les modalités de vente. Faites de vos projets immobiliers une réalité avec Maisons Bruno Petit MJB Châteauroux.

Mentions légales

Terrain proposé par un partenaire foncier selon disponibilités et autorisation de publicité au prix de 22 000 €. Hors droit d'enregistrement et frais de notaire. Maison proposée, avec un contrat de construction de maison individuelle, dans le cadre de la loi du 19/12/1990, au prix de 130 600 € (Hors branchements et raccordements, papiers peints, peintures, revêtement de sol dans les chambres, qui sont chiffrés dans les travaux qui restent à charge du client. Tarif modifiable sans préavis). Étiquette énergie : A. Différents modèles disponibles pour ce terrain. Assurances et garanties du constructeur comprises (RC professionnelle, décennale, dommage ouvrage).

Contactez l'agence de Châteauroux

02 54 22 66 24

    * Champs obligatoires

    Vos informations sont traitées par HEXAOM et transmises à un conseiller commercial qui vous contactera afin de répondre à votre demande. Les plans et images présentés sur notre site sont la propriété d’HEXAOM et ne peuvent pas être reproduits sans son accord. Pour retrouver notre politique de protection des données personnelles et exercer vos droits conformément à la « loi informatique et liberté » cliquez-ici.