Maison neuve à
Le Magny
(36400) Référence :
KG2430577_1
Prix du projet : Maison avec Terrain
prix 161 200 €
- 4 pièces
- 3 chambres
- Surface maison 85 m2
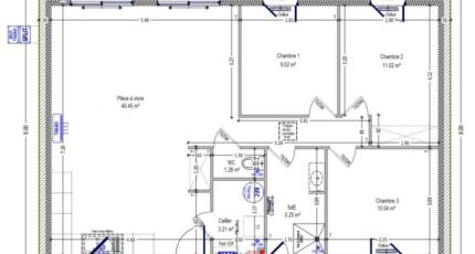
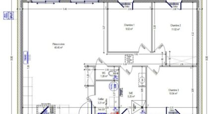
Projet de construction d'une maison de 4 pièces (85 m²) au Magny
IDÉALEMENT SITUÉE - MAISON 4 PIÈCES NEUVE
En vente : nous vous présentons cette maison de 4 pièces de plain-pied de 85 m² et de 1 070 m² de terrain, idéalement située dans Le Magny (36400). Conçue de plain-pied, elle est composée de trois chambres, d'une cuisine et d'une salle de bains.
La maison est neuve.
Cette propriété est située dans un quartier attractif. Il y a l'École Primaire Jean Moulin à moins de 10 minutes à pied.
Elle est à vendre pour la somme de 161 200 €.
Contactez Kevin GRIMAUD (tél : *6-22-14-89-67) pour toute information sur la maison ou sur les modalités de vente.
Mentions légales
Terrain proposé par un partenaire foncier selon disponibilités et autorisation de publicité au prix de 33 200 €. Hors droit d'enregistrement et frais de notaire. Terrain + Maison proposés au prix de 161 200 € (Hors branchements et raccordements, papiers peints, peintures, revêtement de sol dans les chambres. Tarif modifiable sans préavis). Etiquette énergie : A. Différents modèles disponibles pour ce terrain. Assurances et garanties du constructeur (RC professionnelle, décennale, dommage ouvrage, garantie de remboursement de l'acompte, livraison à prix et délai convenu) : https://www.maisons-brunopetit.fr/mentions-legales/.Agence Bruno Petit MJB de Châteauroux (36000)
- Téléphone :
- 02 54 22 66 24
- Adressse :
- 360 avenue de la Châtre
36000 Châteauroux, France