Maison neuve à 
  Le Manoir
 (14400)  Référence :
 JS2322588_4 
Prix du projet : Maison avec Terrain
prix 211 000 €
- 5 pièces
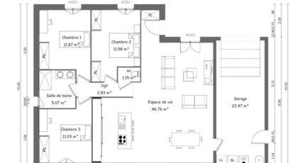
- 3 chambres
- Surface maison 95 m2
Maison T5 (95 m²) en vente à Bayeux
PROCHE DE CAEN - MAISON 5 PIÈCES NEUVE
À vendre : à 9 km de la Manche et à quelques kilomètres de Caen, venez découvrir à Bayeux (14400), cette maison de 5 pièces de plain-pied de 95 m² et de 301 m² de terrain.
Elle dispose de trois chambres, d'une cuisine et de deux salles de bains. Cette maison est neuve.
Des établissements scolaires de tous types sont implantés à moins de 10 minutes à pied, tout comme une crèche. Niveau transports en commun, il y a la gare Bayeux à proximité. La nationale N13 est accessible à 3 km. On trouve une bibliothèque, des commerces, des boulangeries, un supermarché, trois épiceries et une supérette dans les environs. 2 marchés animent les environs.
Elle est proposée à l'achat pour 211 000 €.
N'hésitez pas à prendre contact avec notre agence (Emilie HUE : 06-29-81-46-66) pour toute question sur la maison ou sur les démarches à suivre. Faites de vos projets immobiliers une réalité avec Maisons France Confort Bayeux.
Annonce proposée par un Agent Commercial Partenaire.
Mentions légales
Terrain proposé par un partenaire foncier selon disponibilités et autorisation de publicité au prix de 56 000 €. Hors droit d'enregistrement et frais de notaire. Maison proposée, avec un contrat de construction de maison individuelle, dans le cadre de la loi du 19/12/1990, au prix de 155 000 € (Hors branchements et raccordements, papiers peints, peintures, revêtement de sol dans les chambres, qui sont chiffrés dans les travaux qui restent à charge du client. Tarif modifiable sans préavis). Étiquette énergie : A. Différents modèles disponibles pour ce terrain. Assurances et garanties du constructeur comprises (RC professionnelle, décennale, dommage ouvrage).Agence Maisons France Confort de Bayeux (14400)
- Téléphone :
- 02 31 51 20 91
- Adressse :
-  2, rue Saint Loup
 14400 Bayeux, France
 
  
  
  
  
  
 