Maison neuve à
Le Menoux (36200) Référence : KG2470892_1

Prix du projet : Maison avec Terrain

prix 148 260 €

  • 4 pièces
  • 3 chambres
  • Surface maison 85 m2

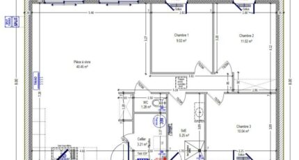
Projet de construction Maison de 4 pièces (85 m²) au Menoux
IDÉALEMENT SITUÉE - MAISON 4 PIÈCES NEUVE
À vendre : située à quelques kilomètres de Châteauroux, idéalement située dans Le Menoux (36200), votre agence Maisons Bruno Petit MJB Châteauroux est ravie de vous proposer cette maison de 4 pièces de plain-pied de 85 m² et de 1 013 m² de terrain. Conçue de plain-pied, elle offre trois chambres, une cuisine et une salle de bains.
Cette maison est neuve.
La maison se situe dans un quartier attractif. L'École Élémentaire François Hervier est implantée à moins de 10 minutes à pied. Niveau transports, il y a les gares Argenton-sur-Creuse et Chabenet à moins de 10 minutes en voiture. L'autoroute A20 est accessible à 6 km. On trouve une bibliothèque à proximité du logement.
Son prix de vente est de 148 260 €.
Prenez contact avec Kevin GRIMAUD (tél : *6-22-14-89-67) pour toute question sur la maison. Maisons Bruno Petit MJB Châteauroux vous accompagne à toutes les étapes de votre projet et dans tous vos projets immobiliers.

Mentions légales

Terrain proposé par un partenaire foncier selon disponibilités et autorisation de publicité au prix de 20 260 €. Hors droit d'enregistrement et frais de notaire. Terrain + Maison proposés au prix de 148 260 € (Hors branchements et raccordements, papiers peints, peintures, revêtement de sol dans les chambres. Tarif modifiable sans préavis). Etiquette énergie : A. Différents modèles disponibles pour ce terrain. Assurances et garanties du constructeur (RC professionnelle, décennale, dommage ouvrage, garantie de remboursement de l'acompte, livraison à prix et délai convenu) : https://www.maisons-brunopetit.fr/mentions-legales/.

Contactez l'agence de Châteauroux

02 54 22 66 24

    * Champs obligatoires

    Vos informations sont traitées par HEXAOM et transmises à un conseiller commercial qui vous contactera afin de répondre à votre demande. Les plans et images présentés sur notre site sont la propriété d’HEXAOM et ne peuvent pas être reproduits sans son accord. Pour retrouver notre politique de protection des données personnelles et exercer vos droits conformément à la « loi informatique et liberté » cliquez-ici.