Maison neuve à
Le Merzer (22200) Référence : DD2466293_4

Prix du projet : Maison avec Terrain

prix 234 691 €

  • 5 pièces
  • 4 chambres
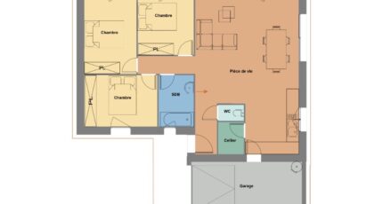
  • Surface maison 85 m2

VENTE d'une maison de 5 pièces (85 m²) au Merzer
IDÉALEMENT SITUÉE - MAISON 5 PIÈCES NEUVE
À 24 km de la Manche et à 24 km de Saint-Brieuc, en vente idéalement située dans Le Merzer (22200), découvrez cette maison de 5 pièces de plain-pied de 85 m² et de 451 m² de terrain.
Conçue de plain-pied, elle compte quatre chambres, une cuisine et une salle de bains. Cette maison est neuve.
Le bien est situé dans un secteur attractif. L'École Primaire Publique du Merzer est implantée à moins de 10 minutes à pied. Niveau transports, il y a quatre gares à moins de 10 minutes en voiture. La nationale N12 est accessible à 4 km. On trouve une bibliothèque à quelques minutes à peine.
Il est proposé à l'achat pour 234 691 €.
Prenez contact avec notre agence Maisons de l'Avenir Saint Brieuc pour obtenir de plus amples renseignements sur la maison ou sur les démarches à suivre. Maisons de l'Avenir Saint-Brieuc vous accompagne dans tous vos projets immobiliers et dans toutes vos démarches.

Mentions légales

Terrain proposé par un partenaire foncier selon disponibilités et autorisation de publicité au prix de 26 491 €. Hors droit d'enregistrement et frais de notaire. Terrain + Maison proposés au prix de 234 691 € (Hors branchements et raccordements, papiers peints, peintures, revêtement de sol dans les chambres. Tarif modifiable sans préavis). Etiquette énergie : A. Différents modèles disponibles pour ce terrain. Assurances et garanties du constructeur (RC professionnelle, décennale, dommage ouvrage, garantie de remboursement de l'acompte, livraison à prix et délai convenu) : https://www.maisonsdelavenir.com/mentions-legales/.

Contactez l'agence de Saint-Brieuc

02 96 78 52 58

    * Champs obligatoires

    Vos informations sont traitées par HEXAOM et transmises à un conseiller commercial qui vous contactera afin de répondre à votre demande. Les plans et images présentés sur notre site sont la propriété d’HEXAOM et ne peuvent pas être reproduits sans son accord. Pour retrouver notre politique de protection des données personnelles et exercer vos droits conformément à la « loi informatique et liberté » cliquez-ici.