Maison neuve à
Le Mung
(17350) Référence :
CR2466506_1
Prix du projet : Maison avec Terrain
prix 188 258 €
- 3 pièces
- 2 chambres
- Surface maison 69 m2
Fort d''une expérience de près de 40 ans, Maisons MCA vous accompagne dans votre projet. Contactez nous pour avoir un accompagnement personnalisé à votre projet.
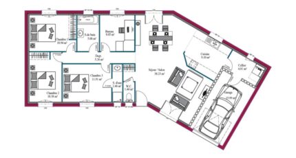
Nous vous proposons votre projet de construction d''une maison de plain pied de 87 m2.
Le coin nuit se compose de 3 chambres, une salle d''eau et WC séparés. La pièce de vie offre une triple expositions pour une grande luminosité.
Le prix comprend le terrain, les frais de notaire, et la construction.
Hors branchements et raccordements.
Contact et renseignements: Cédric RÊTEUX O7 67 07 20 68
Mentions légales
Idée de réalisation en modèle prêt à décorer sur l'un de nos terrains partenaires, sous réserve de disponibilités. Voir détails en agence.Agence Maisons de la Côte Atlantique de Rochefort (17300)
- Téléphone :
- 05 46 88 71 67
- Adressse :
- 95 rue des pêcheurs d'Islande
17300 Rochefort, France
