Maison neuve à
Le Muy (83490) Référence : VC2458190_1

Prix du projet : Maison avec Terrain

prix 380 000 €

  • 5 pièces
  • 4 chambres
  • Surface maison 105 m2

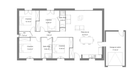
Le Muy - Projet de villa neuve 105 m² avec jardin sur terrain de 757 m²

Rare sur le secteur ! Découvrez ce projet de construction d'une villa neuve de 105 m² habitables, idéalement implantée sur un beau terrain plat de 757 m², au calme, tout en restant à proximité immédiate des commodités sur la commune du Muy.

Pensée pour le confort de toute la famille, cette maison de plain-pied offre une grande pièce de vie lumineuse de 43 m² avec cuisine ouverte, bénéficiant d'une large baie vitrée donnant sur le jardin, parfaite pour profiter de la lumière naturelle et d'un bel espace de vie convivial.

L'espace nuit comprend 4 chambres, dont une suite parentale avec salle d'eau, ainsi qu'une seconde salle d'eau et de nombreux rangements, pour un agencement fonctionnel et agréable au quotidien.

Le terrain plat, bien exposé au sud, vous permettra d'aménager facilement un bel espace extérieur : terrasse, piscine, jardin paysager... selon vos envies.

✔ Maison conforme aux normes RE 2020 pour un confort optimal et des économies d'énergie
✔ Garage possible en option

Prix clés en mains : 380 000 euros (incluant la maison, le terrain et le coût des raccordements)

Une belle opportunité de devenir propriétaire d'une maison neuve personnalisable dans un cadre privilégié au Muy.

Pour plus d'informations et une étude personnalisée de votre projet contactez Véronique CHAUVET au O6 28 31 67 99

Maisons France Confort - Leader en France de la construction de maisons individuelles, entreprise familiale fondée en 1919.

Mentions légales

Terrain proposé par un partenaire foncier selon disponibilités et autorisation de publicité au prix de 165 000 €. Hors droit d'enregistrement et frais de notaire. Terrain + Maison proposés au prix de 380 000 € (Hors branchements et raccordements, papiers peints, peintures, revêtement de sol dans les chambres. Tarif modifiable sans préavis). Etiquette énergie : A. Différents modèles disponibles pour ce terrain. Assurances et garanties du constructeur (RC professionnelle, décennale, dommage ouvrage, garantie de remboursement de l'acompte, livraison à prix et délai convenu) : https://www.maisons-france-confort.fr/mentions-legales/. HEXAOM Services est enregistré auprès de l'ORIAS en tant que Courtier en financement, Niveau 1, sous le numéro 14001345.

Contactez l'agence de Trans-en-Provence

04 94 50 88 00

    * Champs obligatoires

    Vos informations sont traitées par HEXAOM et transmises à un conseiller commercial qui vous contactera afin de répondre à votre demande. Les plans et images présentés sur notre site sont la propriété d’HEXAOM et ne peuvent pas être reproduits sans son accord. Pour retrouver notre politique de protection des données personnelles et exercer vos droits conformément à la « loi informatique et liberté » cliquez-ici.