Maison neuve à
Le Muy (83490) Référence : VC2458190_3

Prix du projet : Maison avec Terrain

prix 404 000 €

  • 4 pièces
  • 3 chambres
  • Surface maison 96 m2

Projet de construction au Muy

Maisons France Confort vous propose cette belle villa neuve, lumineuse et parfaitement agencée, qui saura vous séduire par ses volumes et son confort de vie.

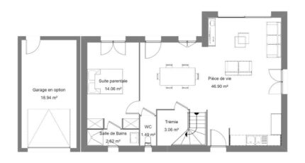
Au rez-de-chaussée, vous découvrirez un hall d'entrée accueillant, une spacieuse pièce de vie climatisée de 41 m² avec cuisine ouverte, idéale pour partager des moments conviviaux en famille. Un cellier vient compléter cet espace pour plus de praticité.
Une suite parentale avec sa salle de bain privative et son dressing offre un véritable espace de confort et d'intimité.

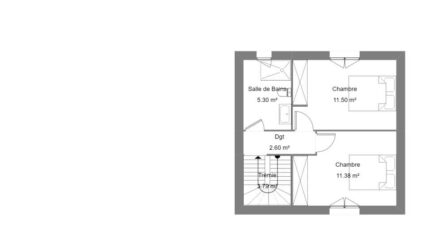
À l'étage, l'espace nuit se compose de 2 chambres ainsi qu'une salle de bain, parfaitement adaptées pour les enfants ou les invités.
De nombreux rangements viennent compléter cette maison pensée pour un quotidien pratique et agréable.

L'ensemble est implanté sur un terrain de 757 m², bénéficiant d'une exposition plein sud, dans un environnement calme et de qualité, tout en restant à proximité immédiate des commodités.
Accès autoroute A8 à moins de 5 minutes.

Votre projet clés en mains : 404 000 euros incluant la villa neuve, le terrain ainsi que le coût des raccordements.

Pour plus d'informations et une étude personnalisée de votre projet contactez Véronique CHAUVET au O6 28 31 67 99

Maisons France Confort - Agence de Trans-en-Provence
Constructeur de maisons individuelles leader en France, entreprise familiale fondée en 1919.

Mentions légales

Terrain proposé par un partenaire foncier selon disponibilités et autorisation de publicité au prix de 165 000 €. Hors droit d'enregistrement et frais de notaire. Terrain + Maison proposés au prix de 404 000 € (Hors branchements et raccordements, papiers peints, peintures, revêtement de sol dans les chambres. Tarif modifiable sans préavis). Etiquette énergie : A. Différents modèles disponibles pour ce terrain. Assurances et garanties du constructeur (RC professionnelle, décennale, dommage ouvrage, garantie de remboursement de l'acompte, livraison à prix et délai convenu) : https://www.maisons-france-confort.fr/mentions-legales/. HEXAOM Services est enregistré auprès de l'ORIAS en tant que Courtier en financement, Niveau 1, sous le numéro 14001345.

Contactez l'agence de Trans-en-Provence

04 94 50 88 00

    * Champs obligatoires

    Vos informations sont traitées par HEXAOM et transmises à un conseiller commercial qui vous contactera afin de répondre à votre demande. Les plans et images présentés sur notre site sont la propriété d’HEXAOM et ne peuvent pas être reproduits sans son accord. Pour retrouver notre politique de protection des données personnelles et exercer vos droits conformément à la « loi informatique et liberté » cliquez-ici.