Maison neuve à
Le Pellerin
(44640) Référence :
VC2260800_3
Prix du projet : Maison avec Terrain
prix 194 500 €
- 3 pièces
- 2 chambres
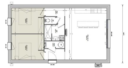
- Surface maison 61 m2
VENTE d'une maison de 3 pièces (61 m²) au Pellerin
MAISON 3 PIÈCES NEUVE - PROCHE DE NANTES
En vente : située sur la côte atlantique et à 22 km de Nantes, Maisons Tradilignes Pornic vous propose au Pellerin (44640), cette maison de 3 pièces de plain-pied de 61 m² et de 197 m² de terrain. Elle est composée de deux chambres, d'une cuisine et d'une salle de bains.
La maison est neuve.
Cinq établissements scolaires sont implantés à moins de 10 minutes, tout comme deux structures d'accueil pour les tout-petits. Niveau transports en commun, on trouve cinq gares à moins de 10 minutes en voiture. Les nationales N444, N165 et N844 sont accessibles à moins de 10 km. Il y a un tennis, des commerces, deux boulangeries, un supermarché, une boucherie-charcuterie et une épicerie dans les environs. Enfin, le marché Rue du Docteur Sourdille anime les environs tous les samedis matin.
Elle est proposée à l'achat pour 194 500 €.
Prenez contact avec Vincent COUCHAUX (06-74-86-07-98) pour toute information sur cette maison, sur les modalités de vente ou sur les démarches à suivre.
Mentions légales
Terrain proposé par un partenaire foncier selon disponibilités et autorisation de publicité au prix de 79 000 €. Hors droit d'enregistrement et frais de notaire. Maison proposée, avec un contrat de construction de maison individuelle, dans le cadre de la loi du 19/12/1990, au prix de 115 500 € (Hors branchements et raccordements, papiers peints, peintures, revêtement de sol dans les chambres, qui sont chiffrés dans les travaux qui restent à charge du client. Tarif modifiable sans préavis). Étiquette énergie : A. Différents modèles disponibles pour ce terrain. Assurances et garanties du constructeur comprises (RC professionnelle, décennale, dommage ouvrage).Agence Maisons Tradilignes de Pornic (44210)
- Téléphone :
- 02 40 82 59 91
- Adressse :
- 46 rue du Général de Gaulle
44210 Pornic, France
