Maison neuve à
Le Pian-sur-Garonne
(33490) Référence :
ML2487327_6
Prix du projet : Maison avec Terrain
prix 231 600 €
- 4 pièces
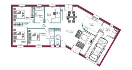
- 3 chambres
- Surface maison 100 m2
Maison T4 (100 m²) en vente au Pian-sur-Garonne
MAISON 4 PIÈCES NEUVE
Nous vous présentons à vendre au Pian-sur-Garonne (33490), cette maison de 4 pièces de plain-pied de 100 m². Conçue de plain-pied, elle comporte trois chambres, une cuisine et une salle de bains.
Le terrain de cette maison s'étend sur 841 m².
La maison est neuve.
Il y a une école primaire dans le quartier. Niveau transports en commun, on trouve sept gares à moins de 10 minutes en voiture. On trouve un accès à l'autoroute A62 à 7 km. Il y a un tennis à quelques minutes à peine.
Elle est à vendre pour la somme de 231 600 €.
N'hésitez pas à prendre contact avec notre agence (Maryne LAGORCE : O6-81-35-86-92) pour toute question sur ce bien ou sur les modalités de vente.
Mentions légales
Idée de réalisation en modèle prêt à décorer sur l'un de nos terrains partenaires, sous réserve de disponibilités. Voir détails en agence.Agence Maisons de la Côte Atlantique de Langon (33210)
- Téléphone :
- 05 56 76 82 20
- Adressse :
- 2, Rue du Onze Novembre
33210 Langon, France
