Maison neuve à
Le Plessis-Trévise
(94420) Référence :
FS2260989_3
Prix du projet : Maison avec Terrain
prix 495 000 €
- 5 pièces
- 3 chambres
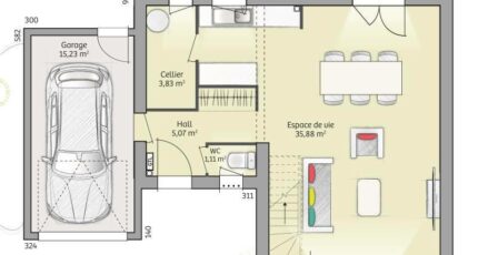
- Surface maison 90 m2
VENTE d'une maison de 5 pièces (90 m²) au Plessis-Trévise
QUARTIER RECHERCHÉ - MAISON 5 PIÈCES NEUVE
Au pied de la station Les Yvris Noisy-le-Grand du RER E (20 min de Paris), laissez vous charmer par cette maison de 5 pièces de 90 m² et de 840 m² de terrain construite dans un quartier convoité du Plessis-Trévise (94420).
C'est une maison de 2 niveaux. Son intérieur compte trois chambres, une cuisine et une salle de bains. Cette maison est neuve.
Cette maison est située dans un secteur recherché. Plusieurs établissements scolaires (maternelle, élémentaire, primaire et collège) se trouvent à moins de 10 minutes à pied, tout comme sept crèches. Niveau transports en commun, il y a le RER E et A ainsi que 13 gares à moins de 10 minutes en voiture. On trouve une bibliothèque, un bassin de natation, un tennis, des commerces, trois boulangeries, deux supermarchés, un bureau de poste et trois boucheries-charcuteries à quelques minutes.
Elle est à vendre pour la somme de 495 000 €.
Contactez Félix SOUMARMON (06-10-24-97-84) pour obtenir de plus amples renseignements sur la maison, sur les démarches à suivre ou sur les modalités de vente. Maisons France Confort Magny-le-Hongre est là pour vous accompagner dans tous vos projets immobiliers.
Annonce proposée par un Agent Commercial Partenaire.
Mentions légales
Terrain proposé par un partenaire foncier selon disponibilités et autorisation de publicité au prix de 320 000 €. Hors droit d'enregistrement et frais de notaire. Maison proposée, avec un contrat de construction de maison individuelle, dans le cadre de la loi du 19/12/1990, au prix de 175 000 € (Hors branchements et raccordements, papiers peints, peintures, revêtement de sol dans les chambres, qui sont chiffrés dans les travaux qui restent à charge du client. Tarif modifiable sans préavis). Étiquette énergie : A. Différents modèles disponibles pour ce terrain. Assurances et garanties du constructeur comprises (RC professionnelle, décennale, dommage ouvrage).Agence Maisons France Confort de Magny-le-Hongre (77700)
- Téléphone :
- 01 84 80 92 96
- Adressse :
- 11 rue de Courtalin
77700 Magny-le-Hongre, France
