Maison neuve à
Le Poinçonnet (36330) Référence : TM2422469_9

Prix du projet : Maison avec Terrain

prix 459 000 €

  • 6 pièces
  • 4 chambres
  • Surface maison 180 m2

Le Poinçonnet : maison de 6 pièces (180 m²) en vente
EMPLACEMENT PRIVILÉGIÉ - MAISON 6 PIÈCES NEUVE
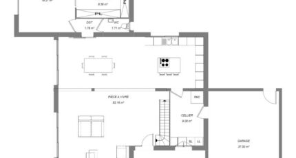
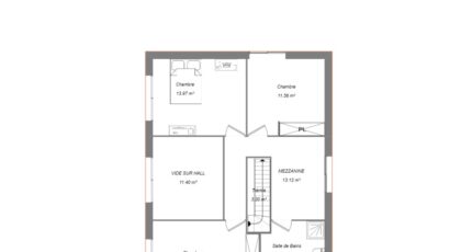
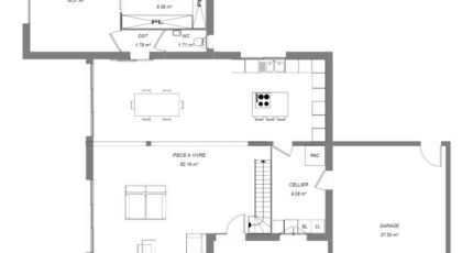
En vente : à quelques kilomètres de Châteauroux, bénéficiant d'un emplacement privilégié dans Le Poinçonnet (36330), nous sommes heureux de vous proposer cette maison de 6 pièces de 180 m² et de 1 100 m² de terrain. Elle compte quatre chambres, une cuisine et deux salles de bains.
Cette maison comporte 2 niveaux. Elle est neuve.
Cette maison se situe dans un quartier prisé. L'École Primaire François Rabelais, l'École Élémentaire Jacques Prévert et l'École Maternelle la Petite Fadette sont implantées à moins de 10 minutes à pied. Niveau transports, il y a la gare Châteauroux à moins de 10 minutes en voiture. L'autoroute A20 et la nationale N151 sont accessibles à moins de 8 km. On trouve un tennis, deux boulangeries, trois commerces, une épicerie, un bureau de poste et deux boucheries-charcuteries dans les environs.
Elle est à vendre pour la somme de 459 000 €.
Prenez contact avec notre agence (Thomas MANIERE : 06-15-51-71-54) pour toute information sur la maison ou sur les modalités de vente. Maisons Bruno Petit MJB Châteauroux vous accompagne à toutes les étapes de l'achat et dans toutes vos démarches.

Mentions légales

Terrain proposé par un partenaire foncier selon disponibilités et autorisation de publicité au prix de 59 000 €. Hors droit d'enregistrement et frais de notaire. Terrain + Maison proposés au prix de 459 000 € (Hors branchements et raccordements, papiers peints, peintures, revêtement de sol dans les chambres. Tarif modifiable sans préavis). Etiquette énergie : A. Différents modèles disponibles pour ce terrain. Assurances et garanties du constructeur (RC professionnelle, décennale, dommage ouvrage, garantie de remboursement de l'acompte, livraison à prix et délai convenu) : https://www.maisons-brunopetit.fr/mentions-legales/.

Contactez l'agence de Châteauroux

02 54 22 66 24

    * Champs obligatoires

    Vos informations sont traitées par HEXAOM et transmises à un conseiller commercial qui vous contactera afin de répondre à votre demande. Les plans et images présentés sur notre site sont la propriété d’HEXAOM et ne peuvent pas être reproduits sans son accord. Pour retrouver notre politique de protection des données personnelles et exercer vos droits conformément à la « loi informatique et liberté » cliquez-ici.