Maison neuve à
Le Poinçonnet (36330) Référence : KG2430194_3

Prix du projet : Maison avec Terrain

prix 219 000 €

  • 3 pièces
  • 3 chambres
  • Surface maison 80 m2

Projet de construction Maison de 3 pièces (80 m²) au Poinçonnet
EMPLACEMENT PRIVILÉGIÉ - MAISON 3 PIÈCES NEUVE
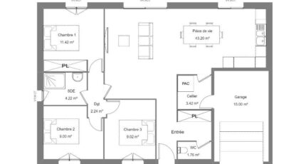
En vente : localisée à quelques kilomètres de Châteauroux, nous sommes heureux de vous proposer cette maison de 3 pièces de plain-pied de 80 m² bénéficiant d'un emplacement privilégié dans Le Poinçonnet (36330). Elle se divise en trois chambres, une cuisine et une salle de bains.
Le terrain de la maison est de 790 m².
Cette maison est neuve.
Cette maison se situe dans un quartier prisé. L'École Primaire François Rabelais, l'École Élémentaire Jacques Prévert et l'École Maternelle la Petite Fadette sont implantées à moins de 10 minutes à pied. Côté transports, on trouve la gare Châteauroux à moins de 10 minutes en voiture. L'autoroute A20 et la nationale N151 sont accessibles à moins de 8 km. Il y a un tennis, deux boulangeries, trois commerces, un bureau de poste, une épicerie et deux boucheries-charcuteries à proximité.
Son prix de vente est de 219 000 €.
N'hésitez pas à prendre contact avec notre agence (GRIMAUD Kevin : *6-22-14-89-67) pour plus de renseignements sur la maison. Maisons Bruno Petit MJB Châteauroux vous accompagne dans tous vos projets immobiliers et dans toutes vos démarches.

Mentions légales

Terrain proposé par un partenaire foncier selon disponibilités et autorisation de publicité au prix de 63 000 €. Hors droit d'enregistrement et frais de notaire. Terrain + Maison proposés au prix de 219 000 € (Hors branchements et raccordements, papiers peints, peintures, revêtement de sol dans les chambres. Tarif modifiable sans préavis). Etiquette énergie : A. Différents modèles disponibles pour ce terrain. Assurances et garanties du constructeur (RC professionnelle, décennale, dommage ouvrage, garantie de remboursement de l'acompte, livraison à prix et délai convenu) : https://www.maisons-brunopetit.fr/mentions-legales/.

Contactez l'agence de Châteauroux

02 54 22 66 24

    * Champs obligatoires

    Vos informations sont traitées par HEXAOM et transmises à un conseiller commercial qui vous contactera afin de répondre à votre demande. Les plans et images présentés sur notre site sont la propriété d’HEXAOM et ne peuvent pas être reproduits sans son accord. Pour retrouver notre politique de protection des données personnelles et exercer vos droits conformément à la « loi informatique et liberté » cliquez-ici.