Maison neuve à
Le Poinçonnet (36330) Référence : KG2430194_5

Prix du projet : Maison avec Terrain

prix 265 100 €

  • 4 pièces
  • 3 chambres
  • Surface maison 110 m2

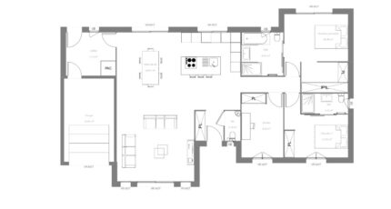
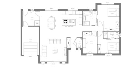
Projet de construction d'une maison de 4 pièces (110 m²) au Poinçonnet
EMPLACEMENT PRIVILÉGIÉ - MAISON 4 PIÈCES NEUVE
À vendre à deux pas de Châteauroux, bénéficiant d'un emplacement d'exception dans Le Poinçonnet (36330), nous sommes ravis de vous présenter cette maison de 4 pièces de plain-pied de 110 m². Son intérieur se divise en trois chambres, une cuisine et deux salles de bains.
Le terrain de la propriété est de 790 m².
La maison est neuve.
La maison se situe dans un secteur recherché. Il y a l'École Primaire François Rabelais, l'École Élémentaire Jacques Prévert et l'École Maternelle la Petite Fadette à moins de 10 minutes à pied. Côté transports, on trouve la gare Châteauroux à moins de 10 minutes en voiture. L'autoroute A20 et la nationale N151 sont accessibles à moins de 8 km. Il y a un tennis, deux boulangeries, trois commerces, deux boucheries-charcuteries, une épicerie et un bureau de poste à quelques minutes.
Son prix de vente est de 265 100 €.
N'hésitez pas à prendre contact avec Kevin GRIMAUD (tél : *6-22-14-89-67) pour toute information sur la maison, sur les démarches à suivre ou sur les modalités de vente.

Mentions légales

Terrain proposé par un partenaire foncier selon disponibilités et autorisation de publicité au prix de 63 000 €. Hors droit d'enregistrement et frais de notaire. Terrain + Maison proposés au prix de 265 100 € (Hors branchements et raccordements, papiers peints, peintures, revêtement de sol dans les chambres. Tarif modifiable sans préavis). Etiquette énergie : A. Différents modèles disponibles pour ce terrain. Assurances et garanties du constructeur (RC professionnelle, décennale, dommage ouvrage, garantie de remboursement de l'acompte, livraison à prix et délai convenu) : https://www.maisons-brunopetit.fr/mentions-legales/.

Contactez l'agence de Châteauroux

02 54 22 66 24

    * Champs obligatoires

    Vos informations sont traitées par HEXAOM et transmises à un conseiller commercial qui vous contactera afin de répondre à votre demande. Les plans et images présentés sur notre site sont la propriété d’HEXAOM et ne peuvent pas être reproduits sans son accord. Pour retrouver notre politique de protection des données personnelles et exercer vos droits conformément à la « loi informatique et liberté » cliquez-ici.