Maison neuve à
Le Porge
(33680) Référence :
YOLEPORGE1_9
Prix du projet : Maison avec Terrain
prix 410 000 €
- 8 pièces
- 4 chambres
- Surface maison 125 m2
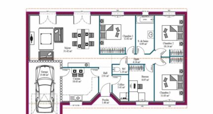
Maison F8 (125 m²) à vendre au Porge
EMPLACEMENT PRIVILÉGIÉ - MAISON 8 PIÈCES NEUVE
À vendre : située à 13 km de l'océan Atlantique et à deux pas de Saint-Médard-en-Jalles, nous sommes heureux de vous présenter cette maison de 8 pièces de plain-pied de 125 m² bénéficiant d'un emplacement d'exception dans Le Porge (33680).
Elle offre quatre chambres, une cuisine et deux salles de bains. La maison est neuve.
Le terrain du bien est de 800 m².
Ce bien se trouve dans un quartier prisé. Il y a l'École Primaire Jean Degoul à moins de 10 minutes à pied. On trouve un tennis, trois boulangeries, deux commerces, un supermarché, une boucherie-charcuterie et un bureau de poste à proximité.
Il est proposé à l'achat pour 410 000 €.
Contactez notre agence (OMARI Yoann : O6-89-15-95-39) pour toute information sur la maison ou sur les modalités de vente.
Mentions légales
Idée de réalisation en modèle prêt à décorer sur l'un de nos terrains partenaires, sous réserve de disponibilités. Voir détails en agence.Agence Maisons de la Côte Atlantique de Ayguemorte-les-Graves (33640)
- Téléphone :
- 05 57 40 44 75
- Adressse :
- 1 allée de l'Agrostis
33640 Ayguemorte-les-Graves, France
