Maison neuve à
Le Puy-Sainte-Réparade
(13610) Référence :
GB2493981_1
Prix du projet : Maison avec Terrain
prix 325 000 €
- 4 pièces
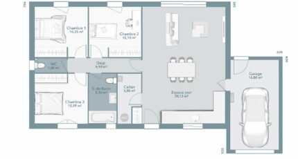
- 3 chambres
- Surface maison 80 m2
En exclusivité chez Maisons France Confort Cabriès et son partenaire foncier ont sélectionné pour vous sur un emplacement privilégié et résidentiel, une jolie parcelle de terrain viabilisé d'une surface de 500 m2 à l'exposition idéale pour une future maison lumineuse.
Idéalement située, Proche des écoles, commerces et à quelques minutes seulement du centre-ville ..
Parce que notre métier est de construire la maison qui vous ressemble
Exemple de projet ( modifiable selon vos envies, optimisé et adapté à votre budget )
° Maison de plain-pied
° 80m2 habitable
° 3 chambres
° Belle pièce de vie ouverte
° Grande baie vitrée
° Conforme aux dernières normes (RE 2020)
Son prix Terrain + Maison : 325 000 euros HORS FRAIS DE NOTAIRE HORS GARAGE ET TAXES DE RACCORDEMENT
Mr Geoffrey BITANGA vous accompagne du choix du terrain à la conception et réalisation de votre future habitation, selon vos envies et votre budget.
Joignable au o6-22-75-52-83_ o4-42-02-85-99
Mentions légales
Terrain proposé par un partenaire foncier selon disponibilités et autorisation de publicité au prix de 180 000 €. Hors droit d'enregistrement et frais de notaire. Terrain + Maison proposés au prix de 325 000 €. Tarif modifiable sans préavis. Etiquette énergie : A. Différents modèles disponibles pour ce terrain. Assurances et garanties du constructeur (RC professionnelle, décennale, dommage ouvrage, garantie de remboursement de l'acompte, livraison à prix et délai convenu) : https://www.maisons-france-confort.fr/mentions-legales/. HEXAOM Services est enregistré auprès de l'ORIAS en tant que Courtier en financement, Niveau 1, sous le numéro 14001345.Agence Maisons France Confort de Cabriès (13480)
- Téléphone :
- 04 42 02 85 99
- Adressse :
- Villa 07 Expobat - Plan de Campagne
13480 Cabriès, France
