Maison neuve à
Le Taillan-Médoc
(33320) Référence :
YOLETAILLAN1_8
Prix du projet : Maison avec Terrain
prix 448 000 €
- 7 pièces
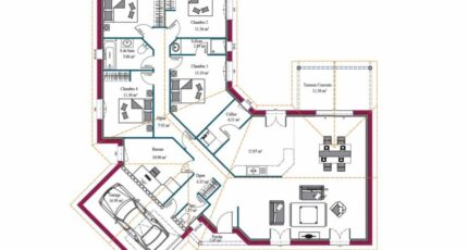
- 4 chambres
- Surface maison 146 m2
Maison F7 (146 m²) en vente au Taillan-Médoc
EMPLACEMENT PRIVILÉGIÉ - MAISON 7 PIÈCES NEUVE
À vendre à 14 km de l'océan Atlantique et à quelques kilomètres de Bordeaux, découvrez cette maison de 7 pièces de plain-pied de 146 m² et de 600 m² de terrain bénéficiant d'un emplacement d'exception dans Le Taillan-Médoc (33320).
Elle dispose de quatre chambres, d'une cuisine et de deux salles de bains. La maison est neuve.
La maison se situe dans un quartier attractif. Des écoles maternelles et élémentaires sont implantées à moins de 10 minutes à pied. Côté transports, il y a six gares à moins de 10 minutes en voiture. L'autoroute A630 est accessible à 5 km. On trouve des commerces, deux boulangeries, un bureau de poste, une boucherie-charcuterie et une épicerie à proximité du logement.
Elle est à vendre pour la somme de 448 000 €.
Contactez notre agence (OMARI Yoann : O6-89-15-95-39) pour plus d'informations sur la maison.
Mentions légales
Idée de réalisation en modèle prêt à décorer sur l'un de nos terrains partenaires, sous réserve de disponibilités. Voir détails en agence.Agence Maisons de la Côte Atlantique de Ayguemorte-les-Graves (33640)
- Téléphone :
- 05 57 40 44 75
- Adressse :
- 1 allée de l'Agrostis
33640 Ayguemorte-les-Graves, France
