Maison neuve à
Le Taillan-Médoc (33320) Référence : TG2409050_1

Prix du projet : Maison avec Terrain

prix 367 000 €

  • 4 pièces
  • 3 chambres
  • Surface maison 100 m2

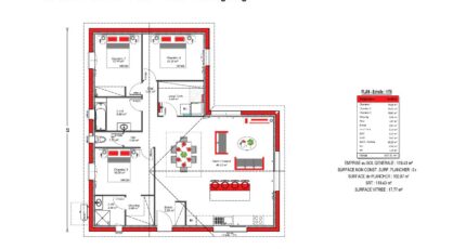
Projet terrain + maison - 100 m² - 3 chambres - Le Taillan-Médoc - 367 000 €

Sur la commune de Le Taillan-Médoc, dans un environnement agréable, nous vous proposons un projet de construction terrain + maison sur une parcelle d'environ 512 m².

Le projet présenté comprend une maison contemporaine de 100 m², pensée pour le confort et la luminosité :

3 chambres, dont une suite parentale avec espace dressing et salle d'eau

Pièce de vie lumineuse avec salon bénéficiant de trois expositions

Espaces optimisés et volumes fonctionnels

Ce projet est une proposition entièrement personnalisable : surface, agencement, prestations, style architectural... tout peut être adapté selon vos envies et votre budget.

Budget global terrain + maison : 367 000 €
(Hors frais de notaire, taxes, peintures, revêtements de sol des chambres et cuisine)

Terrain proposé sous réserve de disponibilité par notre partenaire foncier.

Pour plus d'informations ou pour étudier votre projet de construction sur-mesure :

Thibaud GANDERATZ - 06 72 58 62 29
Alpha Constructions - Agence Homexpo Bordeaux Lac

Mentions légales

Terrain proposé par un partenaire foncier selon disponibilité dans le cadre d’un projet de construction avec Alpha Constructions. Les descriptions, photographies, surfaces et prix illustrant l’annonce sont fournies à titre indicatif et ne sont pas contractuels. Non soumis au DPE. Différents modèles disponibles.

Contactez l'agence de Bordeaux

05 56 80 78 19

    * Champs obligatoires

    Vos informations sont traitées par HEXAOM et transmises à un conseiller commercial qui vous contactera afin de répondre à votre demande. Les plans et images présentés sur notre site sont la propriété d’HEXAOM et ne peuvent pas être reproduits sans son accord. Pour retrouver notre politique de protection des données personnelles et exercer vos droits conformément à la « loi informatique et liberté » cliquez-ici.