Maison neuve à
Le Teich
(33470) Référence :
LC2474564_2
Prix du projet : Maison avec Terrain
prix 342 000 €
- 3 pièces
- 3 chambres
- Surface maison 60 m2
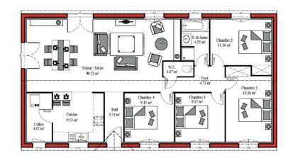
VENTE d'une maison de 3 pièces (60 m²) au Teich
MAISON 3 PIÈCES NEUVE
En vente : localisée sur la côte atlantique, découvrez cette maison de 3 pièces de plain-pied de 60 m² au Teich (33470).
Elle est composée de trois chambres, d'une cuisine et d'une salle de bains. Cette maison est neuve.
Le terrain du bien est de 602 m².
Il y a l'École Primaire Delta à moins de 10 minutes à pied et une crèche. Niveau transports, on trouve la gare Le Teich dans les environs. On trouve un accès à l'autoroute A660 à 3 km. Il y a des commerces, une boulangerie, un supermarché, un bureau de poste et une poissonnerie à quelques minutes.
Son prix de vente est de 342 000 €.
Contactez notre agence (CHAMPEIL Laurent : 05-57-15-12-37) pour toute information sur la maison.
Mentions légales
Idée de réalisation en modèle prêt à décorer sur l’un de nos terrains partenaires, sous réserve de disponibilités. Voir détails en agence.Agence Batisoft de La Teste-de-Buch (33260)
- Téléphone :
- 05 57 15 12 37
- Adressse :
- 27, Boulevard de Cazaux
33260 La Teste-de-Buch, France
