Maison neuve à
Le Triadou
(34270) Référence :
NM2410009_2
Prix du projet : Maison avec Terrain
prix 634 000 €
- 6 pièces
- 4 chambres
- Surface maison 115 m2
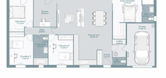
Maison CALIFORNIA de 115 m² proposée ici sur 610 m² de terrain - projet à personnaliser ensemble en fonction de votre budget !
Cette maison peut vous offrir jusqu'à 4 chambres, avec un espace de vie de plus de 37 m² et des espaces respectant le cocon de chacun des habitants !
Les espaces de services, comme les toilettes et les salles d'eau, sont détachés des façades et placés au centre de la maison afin de libérer les façades pour la circulation, et aménager des espaces qui permettent d'apprécier le volume intérieur dans son ensemble.
La pièce de vie au centre de la maison s'ouvre sur le jardin avec des baies toute hauteur sur les deux façades.
Quant aux chambres, elles sont réparties aux extrémités de la maison, d'un côté la suite parentale avec sa salle d'eau et ses rangements, de l'autre, 2 autres chambres et 2 salles d'eau.
RE2020 + GARANTIES CCMI COMPRISES.
Votre agence MAISONS FRANCE CONFORT ST-GELY-DU-FESC est à votre écoute pour vous renseigner au 04-67-66-49-65.
Annonce proposée par un Agent Commercial Partenaire.
Mentions légales
Terrain proposé par un partenaire foncier selon disponibilités et autorisation de publicité au prix de 249 000 €. Hors droit d'enregistrement et frais de notaire. Terrain + Maison proposés au prix de 634 000 € (Hors branchements et raccordements, papiers peints, peintures, revêtement de sol dans les chambres. Tarif modifiable sans préavis). Etiquette énergie : A. Différents modèles disponibles pour ce terrain. Assurances et garanties du constructeur (RC professionnelle, décennale, dommage ouvrage, garantie de remboursement de l'acompte, livraison à prix et délai convenu) : https://www.maisons-france-confort.fr/mentions-legales/. HEXAOM Services est enregistré auprès de l'ORIAS en tant que Courtier en financement, Niveau 1, sous le numéro 14001345.Agence Maisons France Confort de Saint-Gély-du-Fesc (34980)
- Téléphone :
- 04 67 66 49 65
- Adressse :
- 22 rue des lavandes
34980 Saint-Gély-du-Fesc, France
