Maison neuve à
Léguevin
(31490) Référence :
SP2378800_4
Prix du projet : Maison avec Terrain
prix 442 000 €
- 6 pièces
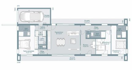
- 4 chambres
- Surface maison 115 m2
Léguevin - Grande parcelle viabilisée avec projet de maison personnalisée
À Léguevin, dans un environnement résidentiel agréable et recherché, découvrez cette grande parcelle viabilisée, idéale pour accueillir votre future maison individuelle. La surface généreuse du terrain permet d'imaginer un projet confortable, avec de beaux volumes et un extérieur à la hauteur de vos attentes.
Nous vous proposons un projet de construction de maison sur mesure, entièrement personnalisable selon votre mode de vie, vos envies et votre budget. Architecture, agencement intérieur, prestations : chaque détail est étudié avec vous pour créer une maison qui vous ressemble.
En choisissant Maisons France Confort, vous bénéficiez de l'accompagnement d'un constructeur leader, reconnu pour son sérieux et la qualité de ses réalisations. Votre maison est construite dans le cadre du contrat de construction CCMI, avec toutes les garanties essentielles : prix et délais convenus, garantie de livraison, assurance dommages-ouvrage et plus de 400 points de contrôle qualité tout au long du chantier, pour une tranquillité d'esprit totale.
Le prix indiqué comprend le terrain et la maison (hors frais annexes : notaire, taxes, raccordements, finitions).
Et nous étudierons ensemble votre projet de maison personnalisée sur ce terrain, avant toute mise en relation avec notre partenaire foncier.
Pour plus d'informations ou pour échanger sur votre projet, contactez l'agence Maisons France Confort Tournefeuille au 05 61 16 47 77.
Annonce proposée par un Agent Commercial Partenaire.
Mentions légales
Terrain proposé par un partenaire foncier selon disponibilités et autorisation de publicité au prix de 170 000 €. Hors droit d'enregistrement et frais de notaire. Terrain + Maison proposés au prix de 442 000 € (Hors branchements et raccordements, papiers peints, peintures, revêtement de sol dans les chambres. Tarif modifiable sans préavis). Etiquette énergie : A. Différents modèles disponibles pour ce terrain. Assurances et garanties du constructeur (RC professionnelle, décennale, dommage ouvrage, garantie de remboursement de l'acompte, livraison à prix et délai convenu) : https://www.maisons-france-confort.fr/mentions-legales/. HEXAOM Services est enregistré auprès de l'ORIAS en tant que Courtier en financement, Niveau 1, sous le numéro 14001345.Agence Maisons France Confort de Tournefeuille (31170)
- Téléphone :
- 05 61 16 47 77
- Adressse :
- 114 chemin de Larramet
31170 Tournefeuille, France
