Maison neuve à
Léguevin
(31490) Référence :
CE2407936_3
Prix du projet : Maison avec Terrain
prix 328 741 €
- 5 pièces
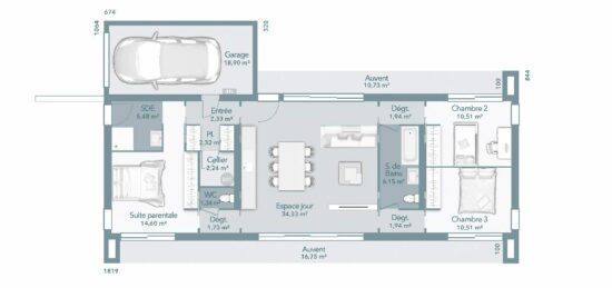
- 4 chambres
- Surface maison 101 m2
Léguevin : maison T5 (101 m²) à vendre avec Maisons France Confort Tournefeuille au 05.61.16.47.77
MAISON 5 PIÈCES NEUVE - PROCHE DE TOULOUSE
À vendre : localisée à deux pas de Toulouse, laissez vous charmer par cette maison de 5 pièces de plain-pied de 101 m² à Léguevin (31490).
Conçue de plain-pied, elle propose quatre chambres, une cuisine et une salle de bains. La maison est neuve.
Le terrain de la propriété s'étend sur 632 m².
On trouve des écoles primaires à moins de 10 minutes à pied. Niveau transports en commun, il y a six gares à moins de 10 minutes en voiture. La nationale N124 est accessible à 3 km. On trouve un bassin de natation, un tennis, des commerces, deux boulangeries et un bureau de poste à proximité du bien. Le marché Place de la Bastide a lieu chaque dimanche matin.
Elle est proposée à l'achat pour 328 741 €.
Contactez Maisons France Confort Tournefeuille au 05.61.16.47.77 pour tout renseignement sur la maison, sur les démarches à suivre ou sur les modalités de vente. Maisons France Confort Tournefeuille est là pour vous accompagner à toutes les étapes de l'achat.
Annonce proposée par un Agent Commercial Partenaire.
Mentions légales
Terrain proposé par un partenaire foncier selon disponibilités et autorisation de publicité au prix de 145 000 €. Hors droit d'enregistrement et frais de notaire. Terrain + Maison proposés au prix de 328 741 € (Hors branchements et raccordements, papiers peints, peintures, revêtement de sol dans les chambres. Tarif modifiable sans préavis). Etiquette énergie : A. Différents modèles disponibles pour ce terrain. Assurances et garanties du constructeur (RC professionnelle, décennale, dommage ouvrage, garantie de remboursement de l'acompte, livraison à prix et délai convenu) : https://www.maisons-france-confort.fr/mentions-legales/. HEXAOM Services est enregistré auprès de l'ORIAS en tant que Courtier en financement, Niveau 1, sous le numéro 14001345.Agence Maisons France Confort de Tournefeuille (31170)
- Téléphone :
- 05 61 16 47 77
- Adressse :
- 114 chemin de Larramet
31170 Tournefeuille, France
