Maison neuve à
Lempaut (81700) Référence : GO2487455_10

Prix du projet : Maison avec Terrain

prix 348 000 €

  • 6 pièces
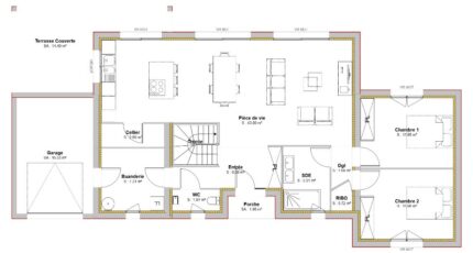
  • 5 chambres
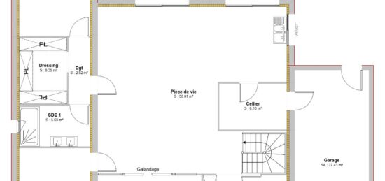
  • Surface maison 145 m2

🌟 Maison Neuve d'Exception à Lempaut : 6 Pièces & 5 Chambres
Le compromis parfait entre espace et sérénité, aux portes de Castres.

Maisons France Confort Albi vous invite à découvrir cette magnifique maison de 145 m², située dans la commune recherchée de Lempaut (81700). Neuve et spacieuse, elle offre une configuration idéale pour une vie de famille épanouie sur deux niveaux.

🏠 Les points forts de la propriété :
Espace Nuit Royal : 5 chambres lumineuses pour accueillir famille, amis ou aménager un bureau.

Confort Moderne : Une cuisine et 2 salles de bains pour une fluidité parfaite au quotidien.

Extérieur Privilégié : Profitez d'un beau terrain de 829 m², idéal pour vos futurs projets de jardin ou de terrasse.

Prestation Neuve : Une construction récente aux dernières normes, prête à vous accueillir.

📍 Un cadre de vie pratique :
Proximité Immédiate : Située à deux pas de Castres.

Famille : École primaire implantée directement dans le village.

Mobilité : Accès à la nationale N126 à seulement 7 km.

💰 Prix de vente : 348 000 €
Concrétisez vos projets immobiliers dès aujourd'hui !

📞 Contactez votre agence Maison France Confort ALBI :
05 63 43 56 40

Annonce proposée par un Agent Commercial Partenaire.

Mentions légales

Terrain proposé par un partenaire foncier selon disponibilités et autorisation de publicité au prix de 90 000 €. Hors droit d'enregistrement et frais de notaire. Terrain + Maison proposés au prix de 348 000 € (Hors branchements et raccordements, papiers peints, peintures, revêtement de sol dans les chambres. Tarif modifiable sans préavis). Etiquette énergie : A. Différents modèles disponibles pour ce terrain. Assurances et garanties du constructeur (RC professionnelle, décennale, dommage ouvrage, garantie de remboursement de l'acompte, livraison à prix et délai convenu) : https://www.maisons-france-confort.fr/mentions-legales/. HEXAOM Services est enregistré auprès de l'ORIAS en tant que Courtier en financement, Niveau 1, sous le numéro 14001345.

Contactez l'agence de Albi

05 63 43 56 40

    * Champs obligatoires

    Vos informations sont traitées par HEXAOM et transmises à un conseiller commercial qui vous contactera afin de répondre à votre demande. Les plans et images présentés sur notre site sont la propriété d’HEXAOM et ne peuvent pas être reproduits sans son accord. Pour retrouver notre politique de protection des données personnelles et exercer vos droits conformément à la « loi informatique et liberté » cliquez-ici.