Maison neuve à
Lempaut
(81700) Référence :
GO2487455_11
Prix du projet : Maison avec Terrain
prix 321 000 €
- 4 pièces
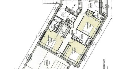
- 3 chambres
- Surface maison 125 m2
🏡 Rare à Lempaut : Maison Neuve de Plain-Pied (125 m²)
Le confort absolu et la modernité à quelques kilomètres de Castres.
Maisons France Confort Albi est ravi de vous présenter cette superbe maison de 4 pièces, offrant une surface généreuse de 125 m² de plain-pied. Située dans le cadre paisible de Lempaut (81700), cette villa neuve combine accessibilité et volumes exceptionnels.
✨ Les atouts majeurs de cette villa :
Vie de plain-pied : Une circulation fluide et confortable sur un seul niveau.
Espace Nuit : 3 chambres spacieuses pour accueillir toute la famille.
Confort & Praticité : Une cuisine et 2 salles de bains pour un quotidien sans compromis.
Grand Extérieur : Un terrain de 829 m², parfait pour vos aménagements de jardin ou de loisirs.
État : Maison neuve, bénéficiant des dernières normes de construction.
📍 Localisation & Commodités :
Proximité : Idéalement située à quelques kilomètres de Castres.
Éducation : École primaire implantée directement dans le village.
Transports : Accès rapide à la nationale N126 à seulement 7 km.
💰 Prix de vente : 321 000 €
Prêt à lancer votre projet de vie ?
Nous vous accompagnons pas à pas dans toutes vos démarches pour faire de cette maison votre nouveau foyer.
📞 Votre contact privilégié :
Agence Maison France Confort ALBI 05 63 43 56 40
Contactez notre agence pour toute question sur la maison, les démarches à suivre ou les modalités de vente.
Annonce proposée par un Agent Commercial Partenaire.
Mentions légales
Terrain proposé par un partenaire foncier selon disponibilités et autorisation de publicité au prix de 90 000 €. Hors droit d'enregistrement et frais de notaire. Terrain + Maison proposés au prix de 321 000 € (Hors branchements et raccordements, papiers peints, peintures, revêtement de sol dans les chambres. Tarif modifiable sans préavis). Etiquette énergie : A. Différents modèles disponibles pour ce terrain. Assurances et garanties du constructeur (RC professionnelle, décennale, dommage ouvrage, garantie de remboursement de l'acompte, livraison à prix et délai convenu) : https://www.maisons-france-confort.fr/mentions-legales/. HEXAOM Services est enregistré auprès de l'ORIAS en tant que Courtier en financement, Niveau 1, sous le numéro 14001345.Agence Maisons France Confort de Albi (81000)
- Téléphone :
- 05 63 43 56 40
- Adressse :
- 187 avenue Colonel Teyssier
81000 Albi, France
