Maison neuve à
Léognan
(33850) Référence :
AB2493259_5
Prix du projet : Maison avec Terrain
prix 470 000 €
- 5 pièces
- 4 chambres
- Surface maison 130 m2
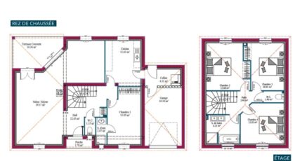
Alexandra BARRAILH des maisons MCA, vous propose d'adapter le modèle Arpege, sur ce terrain de 630m2 situé sur la commune de LEOGNAN.
Cette grande maison de 131 m² est idéale pour accueillir une famille. Composée de 4 chambres (3 à l'étage avec une salle de bain et une suite parentale au rez-de-chaussée), d'un séjour avec terrasse couverte, d'une cuisine séparée avec son cellier et le garage attenant.
Cette maison possède plus d'un atout pour vous séduire, et reste entièrement personnalisable pour s'adapter à vos besoins.
Frais de Notaire compris.
N'attendez plus, contactez vite Alexandra BARRAILH des maisons MCA Artigues-près-Bordeaux, afin qu'elle vous guide dans les démarches et vous accompagne dans votre projet de construction personnalisé.
Mentions légales
Idée de réalisation en modèle prêt à décorer sur l'un de nos terrains partenaires, sous réserve de disponibilités. Voir détails en agence.Agence Maisons de la Côte Atlantique de Artigues-près-Bordeaux (33370)
- Téléphone :
- 05 56 33 23 32
- Adressse :
- 110, Avenue du Peyrou
33370 Artigues-près-Bordeaux, France
